Without design input

BUILDING FAILURE EXPERTISE, 2019
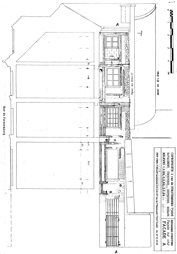
A friend told me she had been suffering from damp for over a decade, an issue that nobody had managed to understand or resolve. I somehow knew that I would end up dealing with it.
With no progress a year later, I offered to take a look, and this is what I could note. (On seeing the sketch, an architect neighbour of hers apparently said : now we have it !)
Had my report been taken more seriously, the friend might not have found herself victim, some months later, of an electrical fire caused by increased humidity due to an inappropriate detection method (dousing the outer wall) specified by the condo adminstrator.
I threatened this person — who clearly despised the technical understanding of a sworn-in independent professional — with testimony before a Tribunal, on the basis of my pièce à conviction, i.e. this drawing. After months of dilatory delays, he finally shifted into gear, almost overnight.

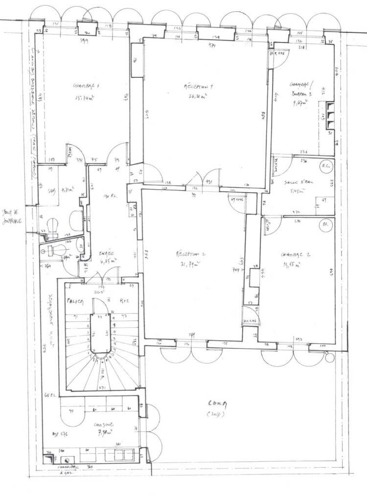
PARISIAN APARTMENT, 2017
Measured survey (diagonals included) for sundry uses, as well as area calculations, of a pre-Haussmann apartment.
Such drawings reveal the history of the various modifications conducted over centuries and every architect worthy of the title should know how to document that, before advancing any refurbishment proposals.

ALMA MATER, STABAT MATER, 2017
To illustrate and publish (necessarily free of reproduction rights) my paper for Anna DOLFI’s collective tome (FUP, 2018) I made a series of line drawings from photographic and other sources.
Meaning that one can reinstate what has already been edited out (case one), graphically render the deeper significance of certain architectural details (case two), compare already remediated iconography (case three) or simply focus on the essential (case four).

CASA GF, PARMA, 2015
Having suggested he cover his sunken parking lot to provide the lower apartment with a terrace, the building owner insisted against all odds (they would never have be tolerated by the local authority) that I “illustrate” what two terraces might look like at +2 level.
Substantially offended (re. an architect’s duty of care to 3rd parties, in this case to the intermediary tenant), I nevertheless did the drawing to avoid falling out with him. This is how capitalism lays claim to efficiency, through down-grading.

R. des VIOLETTES, FRESNES, 2013
Survey drawings, for a contractor, of what had been built (without due prior notification) by way of regularization.

ETAT(S) ACTUEL(S), 2012 (et alii)
Planning applications in France typically require a section through the terrain “as is”.
Just one example of many such filed away, almost never seen.

LE COULX-ET-BIGAROQUE, 2007
Measured survey & structural advice for a couple whose house in Champigny I had also surveyed years before.
In such manner one discovers the monumental errors of construction that are often improvised to “sell” properties….

CFF, r. AUBER, PARIS, 2004
Contract administrator on behalf of industrial livery and transport designers AND PARTENAIRES, Vanves.
Their team had won a CFF tender for a concept store selling mortgages. I was hired to take the cosy model to site.
Cosiness gradually disappeared as reality hit the budget.
Since the staircase didn’t work, I redrew (but did not design) flights of viable length. A final design-&-build solution, by the supplier, was approved & installed.
A genuine “Tendenza” in procurement practice, one might note.

STRUCTURAL LOADING DIAGRAM, 2004
Prior to imminent demolition, for a regularly-used contractor, who expressed concern : graphic analysis of structural loading for urgent tele-communication to a civil engineering firm, which I had to find on his behalf.
Always good to know one’s competence is appreciated, by contractor and engineer alike.

SHEFFIELD ONE, 2000
Project assistant on behalf of architects & urban designers KOETTER, KIM & ASSOCIATES, London.

Long cross sections of the city, drawn by hand, scanned and coloured digitally.

WIND BAFFLE, CANARY WHARF, 2000
Draughtsman for KOETTER, KIM & ASSOCIATES, acting for CWG, London.
Hand-drawn visual of engineering proposal from sources as supplied.

WH FEASABILITY STUDY, 2000
Project assistant on behalf of architects & urban designers KOETTER, KIM & ASSOCIATES, London.
CAD being incapable of conveying the character of any architecture, sections of existing street profiles merit hand drawing.

MAISON M., COARAZE, 1999
The request was for a survey drawing locating the position of a comfort-cooling compressor’s exhaust outlet.
I had by then learnt the economy of rapid freehand tracing from working with P+P+F GOUJON in Nice.

GARAGE A BOLIDES, ST. JEAN, 1998
External consultant on behalf of architects P+P+F GOUJON, Nice.
Study of the levels to ascertain feasibility of a garage beneath a terrace hard up against a swimming pool.
Etude du jeu des niveaux en faisabilité éventuelle pour un garage sous une terrasse à coté d’une piscine.

CONVENTO S. ANTONIO, TEANO, 1997
External consultant on behalf of architect Mimmo LERRO, Teano.
Measured survey drawing of built elements whose imminent restoration he was due to procure.

EX-ITSOS, FORNOVO, 1996
External consultant on behalf of architects & urban designers Maurice CULOT & Pier Luigi BONTEMPI, Parma.
Hand-drawn perspective of town centre redevelopment proposal. Amply published.

LOCAL BUILDING HABITS, KAMPUCHEA, 1995
Measured survey of representative example of typical Cambodian domestic construction.
Table-top pencil drawing, using minimal instruments, which also captures the imprecise, hand-made nature of the object of study.

ERMOUPOLI, 1992
Fountain pen sketch of plateia. Once rich, this Greek island town built itself an Opera house to designs by Pietro SAMPÒ after Giuseppe PIERMARINI, architect of Milan’s La Scala.

CINEMA PALMA, TEANO, 1992
External consultant on behalf of architect Mimmo LERRO, Teano.
For an ideas competition, Quale sala per il cinema ?, the designers wished to promote the restoration of an abandoned convent. They asked me for a perspective, from drawings faxed to Paris.
Crayon & pastel on Xerox (solvent sensitive) copy. This exemplar was lost on a bus in Andalusia.

LNC, COURBEVOIE, 1991
External consultant on behalf of ABK, Paris.
Full set of 1:50 drawings for immediate tender pricing of office building, executed (simultaneously with woodwork for bookcases at home) during summer holidays.
The job was on site within weeks, but the future tenant (automobile showroom) demanded the suppression of intermediary columns….

IL CASTELLO, KUALA LUMPUR, 1991
External consultant on behalf of architects Aldo ROSSI & Luca TRAZZI, Milano.
Perspective rendering of SdA invited competition entry for the future Petronas Towers.
An over-sized reproduction of Giuseppe BENONI’s Punta della Dogana, was the sort of challenge that AR loved to give to people like myself, whom he knew would draw with a certain rigour.

LNC, OFFICE BUILDING, PARIS, 1991
External consultant on behalf of architect Emmanuel ABOULKER, Paris.
Pastel-coloured B/W photocopy on Kraft paper.
To pay my shared office rent, I would occasionally be asked to conjure up rapidly a presentation drawing like this.

BUILT REALITIES, 1989
Project assistant on behalf of architect François BELLET, Paris.
As sole assistant of a lone practitioner, it was up to me to document efficiently the extant realities we might come across in conducting repair & up-grading programs.
Such drawings came in useful to persuade the condominium clients that certain works really needed undertaking.

NORTH BECTON HOUSING, 1984
Summer job, on behalf of architects CORRIGAN, SOUNDY & KILAIDITI, Windsor.
Charrette work : presentation drawings hand-drawn in record time.

KILMICHAEL OF INVERLUSSA, 1982
Measured survey of a fine example of late Georgian West Highland architecture, thankfully saved from threatened demolition.

COPRAT, GOITO & PEGOGNAGA, 1979
Year-out practical training experience at SDA Aldo ROSSI & Gianni BRAGHIERI, Milan.
Even stars do bread-&-butter work ! As for me, I was happy enough to follow instructions in realigning COPRAT’s haphazard fenestration.


IL TEATRO DEL MONDO, 1979
Year-out practical training experience at SDA Aldo ROSSI, Milan.
From the engineering drawings provided I elaborated — during the erection in Fusina of AR’s magnum opus — presentation drawings (plan, section, elevation & 3D) of TdM, which would later be diversely reproduced as stand-alone simili-engravings, coloured contact prints, postcards and in bound publications.
Coll. : CMAS, France.