Signatory or on behalf of others

ARTISTS’ RESIDENCE WITH GALLERY, KYOTO, 2023
Refurbishment study for relations. The dimensions are so small that I had to draw the survey and proposed interventions at 1:10 scale to show the slenderness and refinement of the timber skeleton, only possible thanks to the daisugi culture of cedars.
The kyomachiya‘s tiny garden serves as a well of fresh moisture to cool the interior spaces in the hot season.

MAS KATIA, TOURETTES SUR LOUP, 2019
“Mere” studies in view of a planning application which cost the clients were not ultimately prepared to fully commit to investing.
‘Tis a pity, since the ABF that I had already consulted (Architecte des Bâtiments de France, heritage consultant whose opinion weighs heftily) was duly favourable.

FEASIBILITY STUDY, LE BAR SUR LOUP, 2019
A brief opportunity, until such time as the municipality adopt new planning guidelines (PLI), substantially increased the potential to spread the high cost of special foundations, provided a developer could be found.
Worked up in at least three distinct phases, with critical input from local authority representatives, and integrating their suggestions.
Finally the Mayor had me called — once the study had drawn to its conclusion — to say he didn’t want “the thing”.

RECONSTRUCTION AT THORENC, ALPES-MARITIMES, 2018
A fire having reduced his 1900’s timber chalet to cinder, the shocked client was seeking insurance reparation for “identical” reconstruction, for 3 units. He wished to submit something for their agreement.
Any scheme would need nevertheless to satisfy other legal requirements such as zero-threshold accessibility. Hence the deployment of an upper-level rear gangway.

27 r. du GRAND AIR, BOBIGNY, 2012
Vertical extension to existing residential premises.
Project mutilated by the self-build smarter-than-thou cunning of the owner.

13 r. VERNIER, NICE, 2012
Over the years I had given advice to different Baptist pastors and church councils concerning the premises, sometimes saving the congregation huge expense.
Pressure however subsisted for radical alterations to provide extra amenities.
This study replaces the existing lean-to annex with several storeys, to accomodate parallel activities and benefit from the sunny courtyard.

SCI PALASO, SARTHE, 2012
This is an example of how a scheme devised with a view to economy, finds itself modified ad hoc by owners in the process of building.
Not really architecture, rather more the result of choices & advice by the local édile, roofing carpenter by trade.

LA CITE DE PRIERE, ANGONDJE, GABON, 2011
Hotel-typology infrastructure for seminars and spiritual retreats for a network of pastor-intercessors (RIM).
Unfortunately, when a client has a fixed idea, and is not prepared to listen to professional advice, what gets built on site is just anybody’s business.
With the typical problems, inherent to local habits of construction, that I was hoping to avoid or resolve.

SANTA MARIA, PARIS, 2010
Replacement facade joinery incorporating (hitherto inexistant) opening lights & improving access.
Needless to say the client ruined their rigourously calculated proportions during execution !

FAMILY HOME, PERIGORD, 2008
Conversion of dilapidated farm buildings with a long swimming pool (25m). For various motives (essentially structural, for ease of security and emptying) this was designed to be built above ground, surrounded by planting.
The carte communale was even modified to include it within its perimeter.
But he who lacks proper reference is hard of understanding, and fudges.

PARISIAN APARTMENT, 2002
The Australian developer’s request was to find an extra room for eventual single visitors.
After a dozen revised layouts had failed to grab the client’s fancy, I came up with this, just to satisfy myself.

MAISON B., ESBLY, 2002
A former MBA colleague solicited a scheme (that I consider one of my best !) to optimize the tiny house he had bought as a weekend retreat.
So small in fact that despite the 100% overhaul, a contractor could not be persuaded to even consider pricing the job.

TOWNHOUSE, SYDNEY, 1999
For a cousin whose husband owned the existing chaotic over-developed property.
Sketch model of scheme to partially demolish and rebuild, with patio (for weekday parking and outdoor leisure activities) and connecting ramp.
Forebear : scheme for Nanterre, 1992.

LOOKOUT TOWER, ST. JEAN, 1999
Designer-draughtsman consultancy on behalf of architects P+P+F GOUJON, Nice.
A full-width window just below the eaves provided the look-out. It was obvious to me that it’s own mass needed counter-balancing, for ease of opening and optimal ventilation.
Proof of a constant in the business : the wealthier the client, the less recourse to common sense !

COLLINA DI S. ANTONIO, TEANO, 1997
Designer-draughtsman consultancy on behalf of architects Enzo ANTUONO & Mimmo LERRO, Teano.
Ideas competition proposal for a park with architectural infrastructure (pathways, kiosks, fencing…).
I discovered years later in Weimar’s Park an der Ilm, a backbone watercourse whose landscaping Wolfgang von GOETHE had driven, the kind of Romantic atmosphere this drawing of mine — that I would like one day to retrieve — aimed to convey.

VILLA ILEX, LE ROURET, 1996
Planning application (permit granted) on behalf of ILEX (developer) for a traditional mas-type dwelling straddling existing dry-stone retaining terraces, known as restanques.

TEATRO SAVOIA, CAMPOBASSO, 1996
In collaboration with architects Enzo ANTUONO & Mimmo LERRO, Teano.
Competition proposal for the salvage of the Theatre, already deprived of its foyers, which it once shared with its host the surrounding hotel.
Assembled later, in Nice, an inlay collage of photocopies on coloured paper allowed for making with one’s own hands — i.e. with immense satisfaction and great economy — that for which most punters require expensive and invasive equipment : computers and large-format colour printers.

EBEN-EZER, HAUT-LIMBE, HAÏTI, 1995
Multi-purpose parish centre, alternative sketch study (further amplified) on behalf of the association R.Ev., founded by myself with two associates.

EBEN-EZER, HAUT-LIMBE, HAÏTI, 1994
Multi-purpose parish centre, sketch study (rejected by CEDAHL) on behalf of the association R.Ev.

REHABILITATION, NANTERRE, 1992-1994
To profit from the exceptional view at 1st floor level across the street, I had a terrace installed in partial lieu of the pitch, thus also giving access to the upper rooms.
The clients were delighted to discover this amenity.
The illustrative drawing of the portal corresponds to a model found in Doyon’s book, L’architecture rurale et bourgeoise en France.

NEW BUILD, NANTERRE, 1992
Planning-approved proposal for rear wing to residential conversion of former agricultural warehousing (see above). Ultimately modified by third parties during execution without my authorisation, despite the law ascribing project paternity to the architect.

MESL, SAINTE MARTHE, 1992
Rapid changes of air between meals served to the homeless required the replacement of a rotting hermetic façade by new inwards-tipping sashes.
Proposal rejected outright at planning stage (veto by Architecte des Bâtiments de France, equivalent EH) with the pitiful argument that one should reinstate what existed before and refrain from entertaining any ideas of design relevance whatsoever.

MAISON EN RONDINS DE BOIS, 1992
A friend of a friend desired a sketch scheme to send to a Scandinavian log cabin supplier, for his plot in the Pyrenees.
However, to achieve a satisfactory result, corbeling and crossover log dimensions need to be precisely calculated and taken into consideration.

ILEX LES FERRES, 1992
Planning permission application (granted) for the development of two duplex apartments salvaging the ruins of motley constructions, which proved prohibitively costly for the developer to envisage.

RATSAPOTHEKE, EINBACH, 1991
Feasibility study for a family of doctors, with a view to connecting their lodgings with new practice premises in the depth of the site.

NMS, EDINBURGH, 1991
In collaboration with architect Aldo ROSSI (non-signatory consultant) on my behalf (as registered representative).
First phase project for the New Museum of Scotland, developed single-handedly by the signatory CMAS. AR was persuaded by colleagues to abstain, but the scheme was nevertheless shortlisted.

ACROPOLIS MUSEUM, 1990
In collaboration with Louise COTTER & David NAESSENS, London.
Competition proposal for the Koile (= hollow) site.

VILLA G., PORT-AU-PRINCE, HAÏTI, 1989
Project for a house to be built in successive stages (top diagrams), therefore risking incompletion.
Adolf LOOS’ villa project for Lido di Venezia provides a clue to composing the poetics of such a fragmented destiny.

APARTMENT BLOCK ADDITION, BOULOGNE, 1988
Designer and sole assistant on behalf of architect François BELLET, Paris.
My boss was interested in timber-framed construction (traditionally concealed in pre-Haussmann Paris) and saw the opportunity to improve the 50’s building with a lightweight superstructure.
The client however had not acted with sufficient alacrity, and his minuted agreement was deemed obsolete.

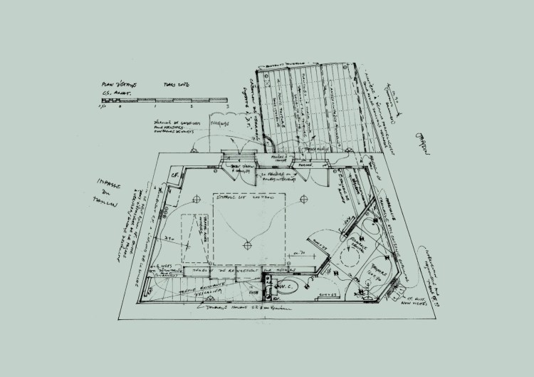
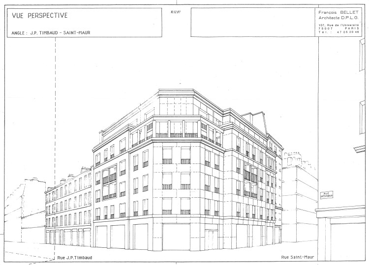
SCI DES TROIS BORNES, PARIS, 1987-1989
Designer and sole assistant on behalf of architect François BELLET, Paris.
Densification of adjacent plots, involving partial demolition, refurbishment (65%) and new build (35%).
Unfettered single-handed design development according to administrative guidelines.

Above : approved scheme, following ABF objections.
Below : initial (max. density) scheme against which the ABF called for a Ministerial hearing.

DONNINGTON HOLT BATH HOUSES, 1985
In collaboration with David NAESSENS, London.
AAI award-winning design for a sports complex, on scrubland, to further extend the Victorian addition to a Georgian country residence and complete the courtyard.
Exposed RA Summer Exhibition, 1986.

RIALTO MARKET, 1985
In collaboration with architect Mimmo LERRO, Teano.
Proposal, by invitation of Aldo ROSSI (appointed Biennale director), for display at Third International Architecture Exhibition of the Venice Biennale.

METROPOLITAN IMPROVEMENTS, 1984
MARCA “thesis project” for Charing Cross, London.

BEDFORD PARK ART SCHOOL, 1983
RCA student project under James GOWAN, for the architecturally rich Arts & Crafts garden suburb.
Such project drawings helped me “land” the Chase Taliani Venice scholarship.

OPERA DE LA BASTILLE, 1983
Competition project (as RCA Masters student, submitted under COLQUHOUN & MILLER’s aegis) developed under the tutorship of (Sir) Jeremy DIXON.
Deliberately coloured like gaudy theatre posters, such representations hardly appealed to the likes of our (rather too straight-laced) architect tutor James GOWAN.
To Aldo ROSSI, however, I had promised to “fake” a work of his (given that he was not participating) to give critics a run for their money. That idea tickled him pink.

JACKSON RD, BROMLEY, 1983
My first planning application (as a student, and successful), a two-storey extension in corrugated iron cladding to a bungalow for Paul JONES, Tommy ROBERTS’ partner in Practical Styling.
The planning officer I consulted had agreed to back the scheme, providing I pulled no tricks.

TORRE DEL CERAMISTA, 1981
Morandian exercise (drawn in Milan, Parma & New York) for a dwelling in the bassa, facing Torrechiara.

CASA VATTANI, 1981
Designer-draughtsman on behalf of architect Aldo ROSSI, Milan.
The noble height of the rooms called for an equally imposing staircase. The double-skin lantern was to ensure permanent cross-ventilation of the atrium.
Coll. : CCA, Montreal, AP142.S1.D58.P2.1.

KLOSTERLIAREAL, BERN, 1981
Designer-draughtsman on behalf of SDA Aldo ROSSI + Gianni BRAGHIERI, Milan.
Design development & presentation drawings of an “ideas competition” proposal for panoramic amenities (lookout platform and Beer Garden) across the river from the historic city centre.
Awarded special prize, of which I received 10%.

IBA ’84, BERLIN, 1980
Designer-draughtsman with & on behalf of SDA Aldo ROSSI + Gianni BRAGHIERI, Milan.
Social housing competition project on site of Albert SPEER’s NSDAP headquarters, razed by Allied Forces.
Project substantially modified for construction. Amply published.

CLERKENWELL WAREHOUSES, 1979
Final project for RIBA Part I exemption degree show at Kingston Polytechnic.
Sent immediately to Aldo ROSSI in July, slides of such drawings led to my being hired, as of September 1979.