Projet sollicité début 2010 par le pasteur Pierre-Serge NGAMPIA, fondateur du RIM, moyennant personne interposée, un certain Gary. Avec l’accord de nos épouses respectives, nous nous sommes rendus au Gabon ensemble en février 2011. Temps de réalisation (relevé, étude, au crayon, maquette) : 6 semaines.
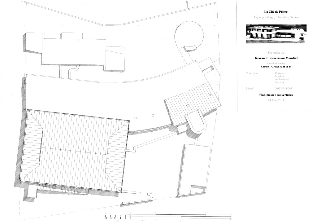
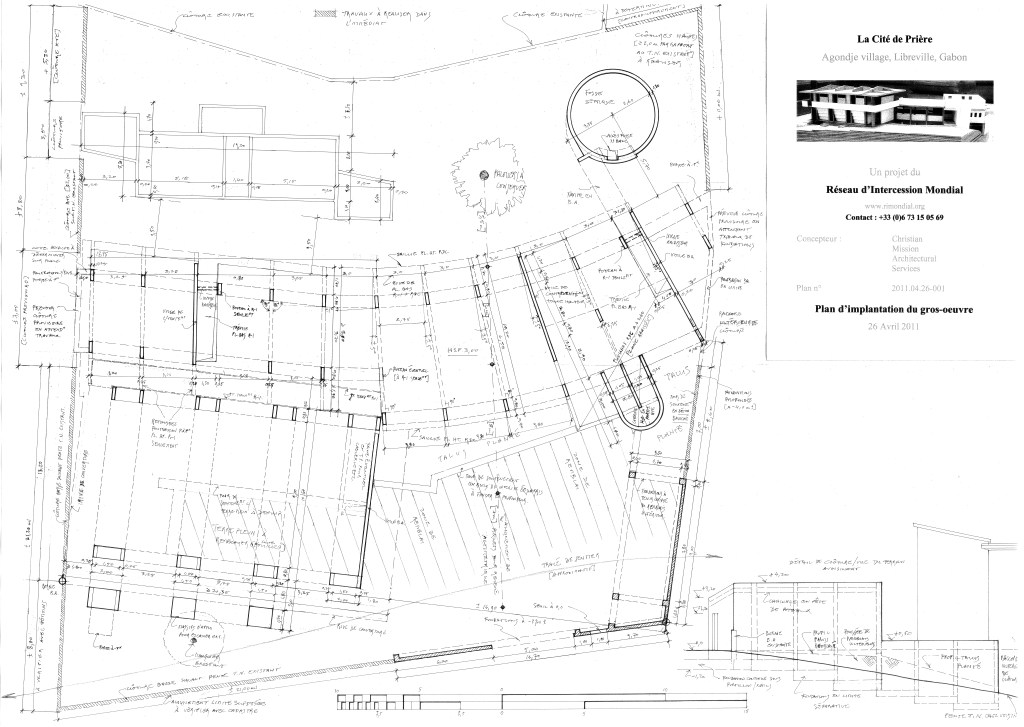
Le programme devait prévoir des salles de réunion et de culte, des chambres d’accueil pour des retraites spirituelles et le jeûne (d’où le prospect sur la nature), gardiennage, aire de manoeuvre etc. sur un terrain vierge, à déclivité importante, dans une ville satellite de Libreville. J’y ai aligné des piquets pour en relever le contour et la pente, avec niveau à eau.
Dossier de plans 1:50 @ A1 (Paris, 2011.04) :
Album A4 de la mission (Paris, 2011.03)
Maquette 60*60 laissée sur place (Angondje, 2011.03) :
Croquis d’étude (Port-Gentil & Angondjé, 2001.02) :


Tout est vanité, dit l’Ecclésiaste.
En fin de compte le Maître de l’Ouvrage a décidé de faire à sa façon. Tout en prétendant que mes plans ont été respectés, hormis quelque modification pour y inclure plus de chambres, les photos récemment envoyées du début de la construction (infra) correspondent assez exactement au croquis de plan qu’il m’avait montré en 2010, avant même que je m’ y engage.

J’ ai découvert par cette expérience la douloureuse limitation des personnes dominées par le souci matériel à envisager d’ autres solutions que celles déjà courantes, aussi mauvaises soient-elles. On ne peut guère espérer à réaliser des ouvrages dignes de son temps face à de tels reflexes. Si on affiche de telles ambitions, pour mieux se tromper, on se demande même à quoi leur sert la foi en Jésus-Christ. (Par le fruit on reconnaît l’ arbre !)
Pages apparentées :
Architectural models / Maquettes d’architecture / Plastici di architettura
OPUS INCERTUM : Take Your Pick / Faites Votre Choix / Scegliete Voi
























