Here figure a number of projects & interventions (sometimes quite banal) undertaken for no fee, at the request of pastors, church or mission organisations, or even for individuals in dire circumstances, as well as pro bono service as holder of public office.
Mid-MBA course, on 1st April 1994, I set up a French NPO (association 1901) to frame such activities, which seemed far more useful and promising (if one was bound to invest one’s time, skill and energy for no material reward, just to get work) than doing architectural competitions, a destroyer of working capital hard to equal. This TVA-registered association, Réhabilitation Evangélique, would sign a number of projects whose declared activity of maîtrise d’oeuvre I assured on its behalf.
When the association ceased functioning (the other members having disappeared, leaving no trace) I might either sign a project myself or, so as not to make any faux pas with respect to the Ordre des Architectes du Gabon, use a nom de plume such as Christian Mission Architectural Services, whose acronym corresponds to my initials, CMAS. In any event, all architectural interventions in France have been declared to my insurer la Mutuelle des architectes français (MAF).
Sorting out fire damage, Paris, 2019-20
A regular of the Anglican church was victim of an electrical fire, some months after the somewhat administrator of her copropriété had commissioned, in response to her repeated complaints of damp infiltration, a most inappropriate means to discover its source.
The hardly conclusive recherche de fuite undertaken by the contractor simply aggravated the situation, by pouring in more water, with a hose. (This, incidentally, pleads for the prior provision of Method Statements, a logic quite unknown in France.)
Given the state of shock from which our friend was suffering, it was necessary to mobilise people at the Anglican church. For my part, I assumed the ungrateful but pivotal role of “kick-assing” all and sundry (including the householder), into a semblance of operational reactivity.

Transportable Easter cross, 2018
This still ‘live’ project (pending sponsorship) was requested of me by the vicar of the Anglican church in Paris, keen both to get people into the 1970’s building, and to relate somewhat differently to the polished fixed symbol behind the altar, which might conceivably be hidden on occasions.
I would really like to make this, carry the project through, but have no material resources of my own to provide, just my skills & energy. Financial contributions, to cover costs, therefore most welcome.

Presbytery survey, Paris, 2017
Interregnum periods between pastoral appointments mean that the presbytery is often empty, sometimes for nearly a year. Given the relative frequency of turnover, and that appointee profiles differ considerably in needs (single person or a family) this hardly makes for good asset management of an asset that might attract 3.000 Euros in rent per month. First step, a measured survey to determine the exact floor area.
My proposal was to let the flat out at market rates, in order to finance appropriate accommodation when and where necessary. Fine, provided I would deal with it ! However, others’ cold feet and psycho-rigid fear of breaking the law put paid to the initiative.

Setting up a firm in Gabon, 2012
Setting up an SARL in Gabon (PRODEO), on behalf of Gabonese missionaries working in France, lacking in support funds and desirous to fend for themselves. Corruption, institutional dishonesty & unreliability of interlocutors advises against further involvement.
scan or photograph a document
A narrow semi-vacant site adjoins the 1910 building, no longer quite adapted to contemporary requirements.
Volumetric study of extension potential, in drawing and model form, the Swedish pastor being desirous to meet the congregation’s request for more serving spaces (in the Louis-Kahnian sense). Residential accommodation (potential presbytery or student dwellings) might complete & help finance the associative programme.

The programme for this project resembled a small hotel-cum-conference centre, a sort of contemporary monastery. A dozen rooms were planned for spiritual retreats, meeting & conference rooms for worship and teaching seminars. Site declivity was exploited to separate a quiet secluded garden from noisy assembly rooms.

Election to public office, UK, 2003-2006
Service as architect Member of the Architects Registration Board, United Kingdom and ARB delegate to ACE-CAE in Bruxelles, elected on a ‘European ticket’. Rather than stand for re-election in 2006, I preferred to organise the candidature of an ARB-registered French architect, who had returned to France.
scan a document
Wheelchair access (BWIC), Nice, 2000
Although working in London I would drop in on my friends at EEB Nice. A sketch for wheelchair accessibility was requested. The builders’ work in connection (BWIC) with that exercice was undertaken voluntarily by members of the congregation.
find sketch
Salvation Army premises, Nice, 1998
By promoting La Marche pour Jésus in Nice and co-founding AMOS (Alpes-Maritimes Oeuvres Sociales) I had been received by local representatives of l’Alliance Evangélique. At one of our meetings the SA major asked me for a layout of booths in which to receive individuals privately.
find sketch
Basement exit compliance, EEB, 1999
EEB Nice wished to exploit their basement for social activities, implying chge of status and compliant modifications to fire exits. Since I was due to leave to work in London I gave written report, and recommended other architects.
find text
Reconfiguration plans of two adjacent properties, increasing the size of the premises of église protestante évangélique near Quatre Chemins in Grasse. Inversion of the flight of stairs proved a simple efficient solution. Executed by volunteers.

Roof-deck repairs, EEB Nice, 1996
Cost-saving advice to local association cultuelle, the work being undertaken by voluntary professionals also on a pro bono basis.
find photo
Initially developed with Arch. Mimmo LERRO (Teano, Campania) and completed in Paris, the case study corresponds to a genuine request by Phnom Penh contacts, desirous to deploy their stocks of indigenous hardwood, unsaleable on the international market. Potential cash-flow generator for the orphan training programmes of Les Enfants de Lumière (see below).

Church-cum-dispensary, Haïti, 1995
Sketch schemes for fund-raising purposes (against a measured quantifiable building project) to help a Haïtian pastor achieve that goal in France. Decidely the first sketch was too realistic (corresponded to what they had and wanted to change). JV was after Architecture, which to him seemed to mean ‘colonial’.

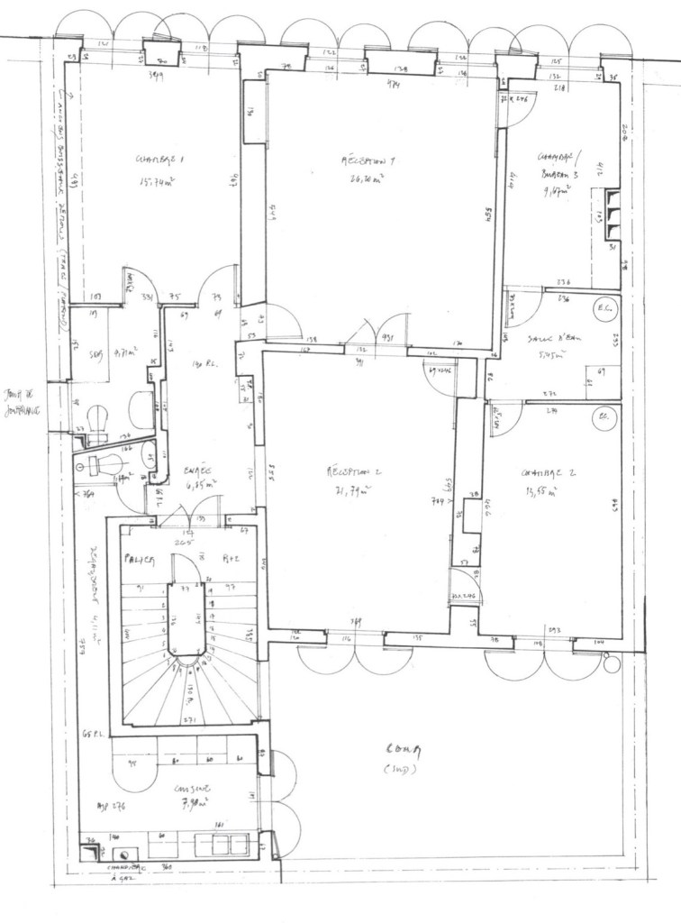
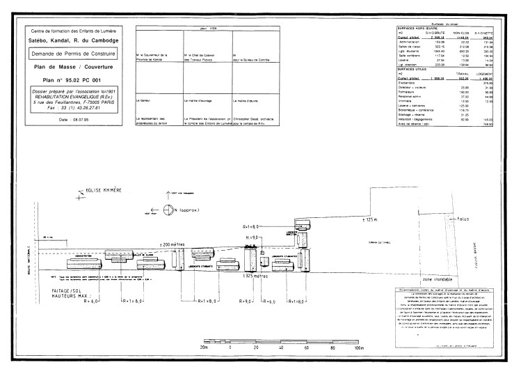
Planning application, Cambodia, 1995
On behalf of the association Réhabilitation Evangélique, in favour of Les Enfants de Lumière, another French NGO / NPO planning to establish orphan training programmes in Kandal Province. A site visit & survey were necessary, likewise a study, sur place, of local construction habits. Completion of file commenced by Geoff XXX.

Fund-raising site work, 1994
Phase 1 site supervision & phase II tender for EDIB, Nanterre, on behalf of Réhabilitation Evangélique, who were to receive the fees from my pro bono work on its behalf. The residual cash thus saved (otherwise consumed by standing charges superior to the income generated) would later cover the cost of return airline tickets to Cambodia for 3 people. Thus permitting several other pro bono & case study projects to be developed.
Building works were limited to le clos & le couvert (new foundations, gros-oeuvre & roofing) the electrician client preferring to see to interior finishes himself. Still, to be paid, the association had to take the client to court, on two counts, only one of which was held by the Tribunal, without costs. Lawyers fees reduced by 30% the final award, corresponding to just 1 fee note.

Fixe exit compliance, EEB 75012, 1993
Travaux de mise en conformité sécurité incendie & ERP (établissement recevant le public) suite prise de conscience professionnelle & citoyenne. Ont pu être mis en oeuvre grâce au don de personnes aveugles, n’ayant aucune connaissance des plans affichés au préalable dans les locaux.

Replacement fenestration, MESL, 1992
Façade study & tender offer consultation for replacement fenestration, in order to rapidly change the fetid air between séances (45 individuals admitted every 45″ for meal servings & Gospel message). Proposed remodeling rejected by France’s aesthetic police, ABF (Architectes de Bâtiments de France), who ‘advised’ preserving the malfunctioning system.

Radio recording booth, Paris, 1988
A well-known French pastor & radio personality wished to conduct interviews for radio transmission, which he had been authorised to do in the basement of EEB, rue Victor Chevreuil. A sound-proofed booth was required. My employer instructed a contractor to make a donation of the required building materials to the site.
find sketch
Solid oak church lectern, Paris, 1987
This design for a lectern was made to order, but caused indignation. My first skirmish with a mindset preponderant in French Protestant milieux, that I now refer to as le misérabilisme évangélique. With the pretext that it costs less than the well-crafted, such would prefer to offer in the service of God, cheap, shoddy and makeshift solutions.
find drawing & photo
Related or parent pages :