Planning Applications

In my over 40-year career I have in the end prepared very few planning applications. Quite unlike those I did in the employ of other practitioners, those introduced in my own name have usually been granted in record time. The secret is to never lodge an incomplete application. Many confrères, it would seem, prefer to lodge applications on an insufficiently documented basis, which only delays the process, and makes the instructing Administration suspicious.

Here, in reverse chnronology, are applications lodged in several countries :

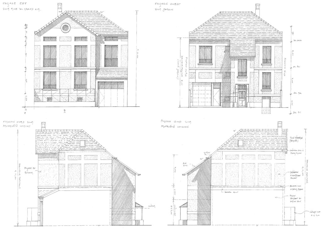
House extension, Bobigny, 2012

The vertical extension of this house required the prior renforcement of the structure and a new stairwell projecting out the back. The banding is a textural & chromatic treatment of the render finish, typical of French pavillons de banlieue. Unfortunately the client proceeded to build something quite different.

House extension, Mareil, 2012

Old village houses rarely admit enough light for contemporary living habits. The unexpected discovery of the glazed rear extension to a longère in the vicinity, where the original outer wall had been removed, was enough to convince my clients that this sort of solution was what they were actually looking for themselves.

Country residence, Périgord, 2008

The British clients, one of whom had been a close collaborator for six months in London (Li.Ter Ltd), had signed to buy this property when I stepped in, insisting that topographical & ground surveys be undertaken. From 1st January 2008 all PC applications had to integrate principles of unité de vie, providing for for autonomous living on one accessible floor, in the event of handicap.

Villa extension, Opio, 1999

Permission was granted within 5 weeks of lodging the application to add another storey to the uphill wing of this split-level 1970’s construction. A studied exercice in the asymmetrical composition of fenestration.

Villa on Côte d’Azur, 1997

For a marchand de bien, to definitively secure the constructibility of the olive-grove site, whose certificat d’urbanisme was about to expire, and would not necessarily be renewed. A concrete application of principles developed in the case study Villa 06.

Orphan training centre, Cambodia, 1995

Planning was apparently granted for this scheme that our association Réhabilitation Evangélique had prepared for Les Enfants de Lumière, a French NGO who had protocoles d’accord with a number of Royal Cambodian Government Ministries. To obtain the certificate however the client needed to pay Frs. 1.000. Apparently our effort was not worth even that expense. I never received a copy.

Baptist church façade, Paris, 1993

Obligation de conseil oblige, the excessive numbers attending a funeral on the premises which had only a narrow door to the street, incited me to propose fire exit compliance modifications to the premises, including the façade.

Replacement fenestration, Paris, 1992

A soup kitchen for homeless people, where I served as a volunteer for several years, needed to change air between sittings. The façade was in a state and needed repair. Solicited by my associative colleagues, I lodged an application which fell foul of the conservative diktat of the instructing ABF.

Village houses, Les Ferres, 1992

Before I had even set foot in Architecture school my mother had purchased, renovated and sold on a neighbouring property in this hill village. Hoping to do more, adjacent lots ware acquired. Some 15 years later I found myself paid to come up with a solution, 2 flats superposed. A builder we had used in Paris, desirous to move south, looked at the project. His conclusion : unviable for lack of builders’ merchants & skilled workers in the area.

Superstructure, Boulogne, 1988

A client of my employer François BELLET desired to use an old agreement, granted by former co-owners, to add extra floors and roof-terrace above his dwelling.

Given the task of setting out a timber stud construction for the lightweight superstructure, I aimed to improve the ordonnancement of the original, squat & rather ugly, mosaic-clad façade.

Unsurprisingly, the application fell foul of third party objections.

Subsidised housing, Paris, 1988

Design developed in the office of François BELLET who allowed me a free hand. Separate planning applications for adjacent lots belonged to the same developer (1% patronal), one new build, the other refurbishment. A long and tiresome process, the client having objected to the ABF’s avis, a presentation was made to a ministerial delegate, who upheld the ABF’s objection.

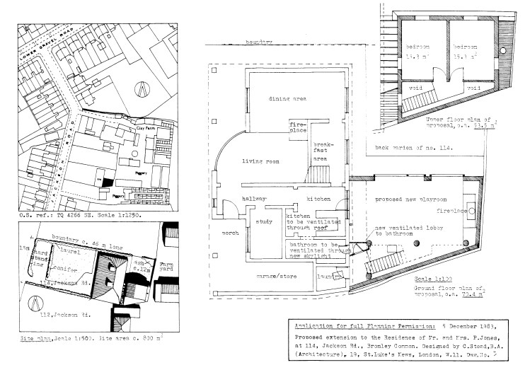
House extension, Bromley, 1983

The north-facing windows of this improbable two-storey extension to a single-storey bungalow at the end of Jackson Rd. would have admired a mature sun-bathed tree in the garden. Planning consent obtained while still RCA student. At least two comrades, BC-K and JB were admirative. Less so RP & MR (later BPR), critical of the orientation.

Related or parent pages :

Built Architectural Designs

Employee Contributions to Others’ Work

Interventions By Date (reverse chronology)

Take Your Pick (thematic groupings)