Reconnaissance stage, not yet (sometimes never) involving architectural design contributions
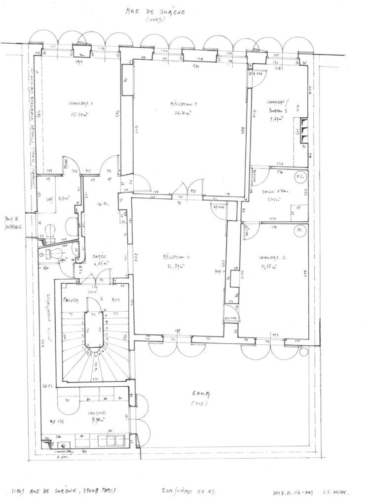
Apartment, Paris, France, 2017
The originally 18th C. building, whose vaulted basements run parallel to the road, may well have stood alone surrounded by gardens, before neighbours encroached to form a continuous street façade à la Haussmann. Paradoxically the superstructure bays run perpendicular to the road. Acoustic quality reveals that, apart from the stone façade (of unequal thickness, indicating ulterior re-alignement) the cellular divisions are built in pans de bois, timber stud framing typical of pre-Haussmann Paris, with plaster infill.

House in Bobigny, France, 2012
A measured survey was required for three principal purposes : planning application item, design development of envisaged extension, analysis of structural coherence & building failure. The immigrant client was trained as an architect in country of origin.

House in Périgord, France, 2007
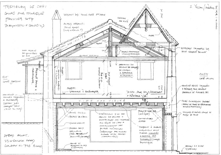
A former winery, this building had been converted some decades previously by Americans who added a false turret. Having previously worked for this couple, related to a former employer, I was invited by the latter to check out this country property to provide them a basis for making decisions in view of future alterations.

SCI Palaso (2011), Sarthe
Bevan (2007), Périgord
Tremblay (2007), Périgord
Mestaoui (2004), Chatillon, pour certification fiscale de m2
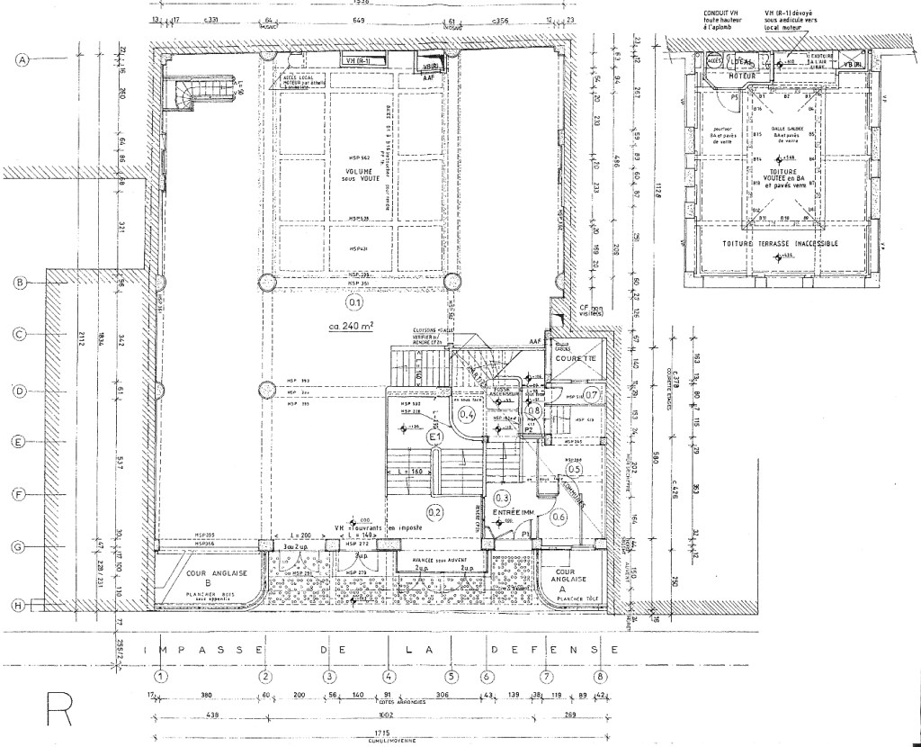
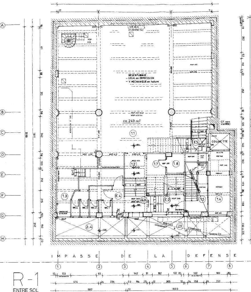
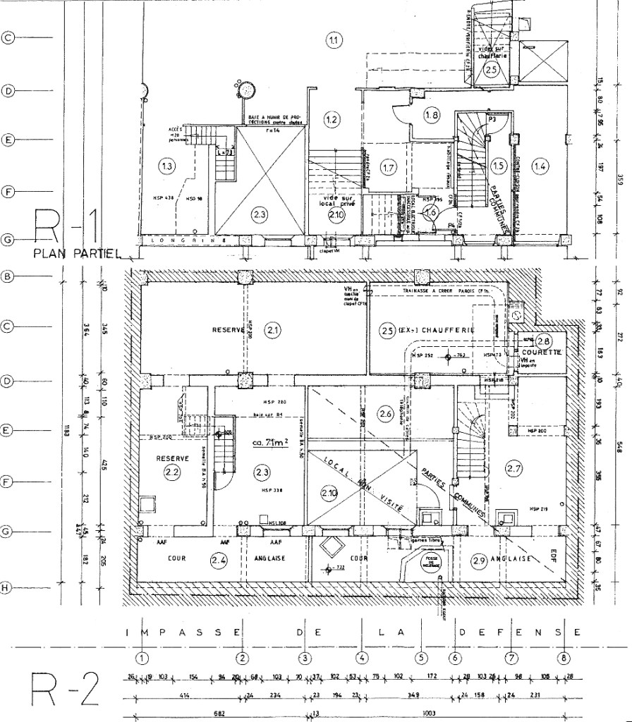
Impasse de la Défense (2001), Paris
Tremblay (1993), Champigny
It is worth mentioning here that nothing beats an architect’s own “hand’s on” survey, indeed often essential in familiarizing oneself with the premises, identifying project potential, diagnosing building failure and identifying remedial work to be prioritized.
Related or parent pages :
Architectural Studies (signatory)


















