
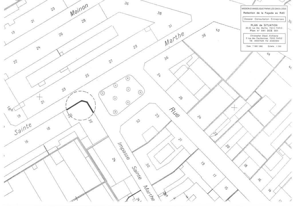
Dossier de consultation des entreprises (DCE) :

Related or parent pages :
Architectural Studies (signatory)
Interventions By Date (reverse chronology)
Take Your Pick (thematic groupings)
A Portfolio of Random Items & Interventions (Held Together by Love) by Christopher Mark Allison Stead

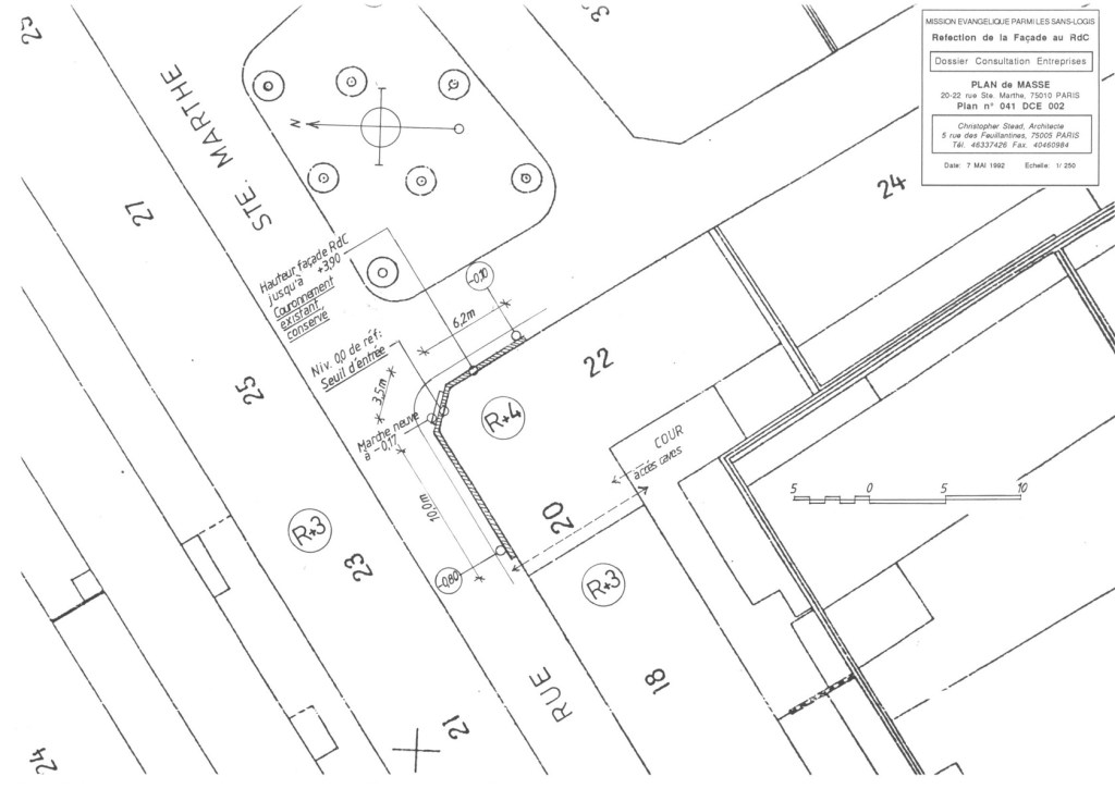
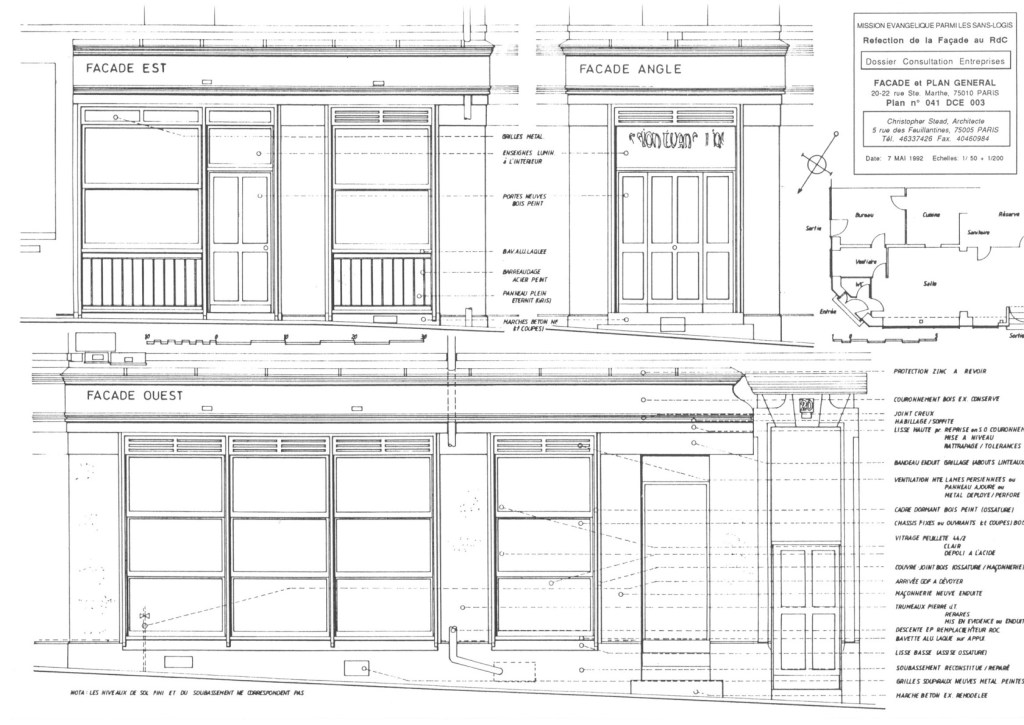
Dossier de consultation des entreprises (DCE) :

Related or parent pages :
Architectural Studies (signatory)
Interventions By Date (reverse chronology)
Take Your Pick (thematic groupings)