Demande de permis de construire (apparemment octroyé, sous réserve de débourser).

Denise LORTHOIS, collaboratrice en cabinet d’avocat et fondatrice de l’association française Les Enfants de Lumière, détenait des protocols d’accord avec plusieurs ministères cambodgiens pour la construction d’un orphelinat et cherchait un professionnel disponible pour en dress le projet. Un architecte (employé des monuments historiques, et non pas travailleur indépendant), marié à une Cambodgienne, faisait partie de cette association, mais ne pouvait s’y engager.
J’avais aussi créé une association 1901, pour continuer à travailler comme architecte, mais en bénévole associatif, ce qui permettait d’encaisser des honoraires sans se payer. La trésorerie conservée (autrement dilapidée en charges sociales obligatoires sans aucun rapport avec le CA réellement réalisable) permettrait d’avancer les dépenses de mobilité que génèrent d’emblée l’engagement sérieux en tout projet architectural.
Denise s’est donc adressée à moi, et en même temps un architecte britannique, qui avait travaillé plusieurs fois en Afrique pour Habitat for Humanity, l’oeuvre de Millard FULLER, a refait surface (il m’avait téléphoné quelques années auparavant cherchant du travail à Paris). Geoff, qui avait une épouse de souche vietnamienne, ne cherchait qu’une chose : repartir pour un projet humanitaire. Je pensais avoir trouvé l’homme pour Denise. Sauf que quand il ne pouvait plus envisager de s’y rendre pour inspecter les terrains susceptibles d’y figurer, j’ai dû me résoudre à partir à sa place.
Je venais d’achever le mémoire de projet pour mon MBA, et de le soutenir.
Nous sommes partis pour deux semaines aussitôt après, en compagnie d’un Anglais de Bristol que j’insistai vienne avec nous. Après une semaine il est rentré. Ce n’étaient pas des vacances, mais une rude épreuve de la résistance aux forces occultes et de manipulation dont les peuples asiatiques connaissent le secret.
Première étape sur place : relever des exemples de système constructifs susceptibles d’informer le projet que Geoff s’était engagé à développer en dessin à notre retour.
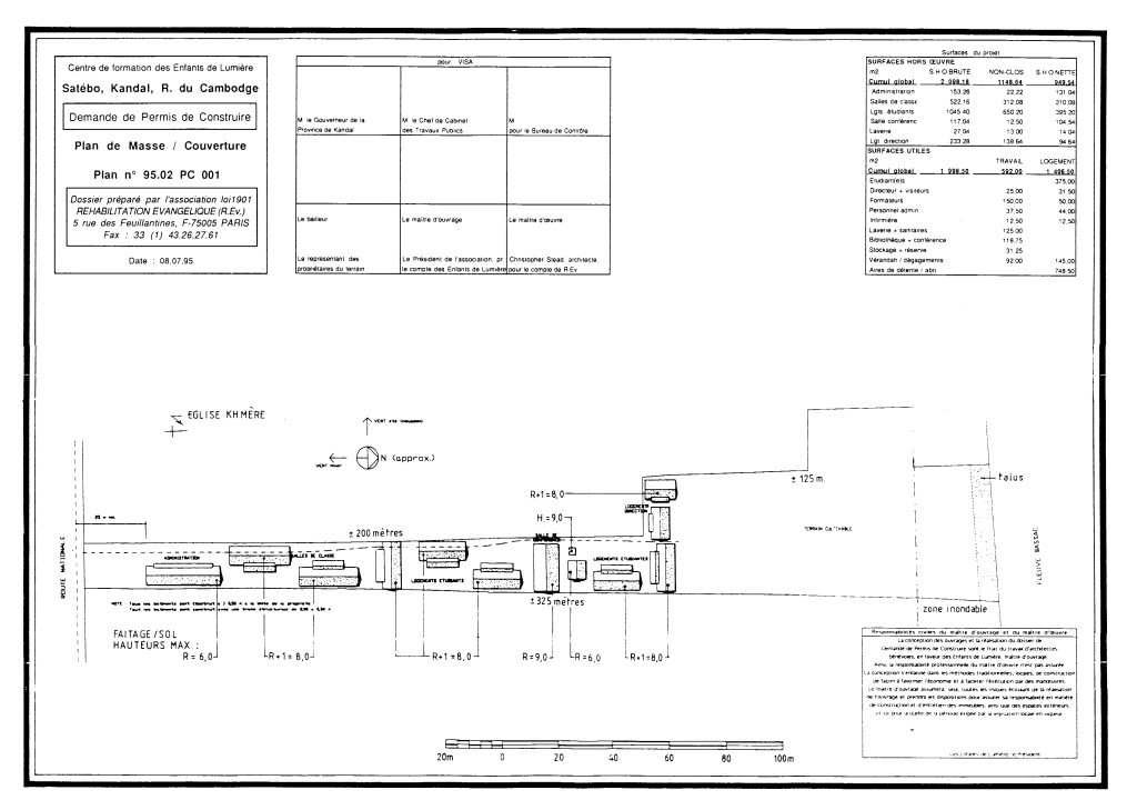
Deuxième étape sur place : relever un terrain sans bornes, entre la route et le bord de la rivière, pour établir un semblant de plan de masse.
Troisième étape à Paris : Geoff dessine le projet sur Autocad, mais doit abandonner en raison d’une embauche par Habitat for Humanity. Il me passe les plans.
Quatrième étape à Paris : j’achève les plans, modifiant des calques Autocad imprimés, pour dépose par personne interposé en escale à Paris.
Suite : Denise LORTHOIS raconte l’histoire de son projet dans un livre, Sous Ses Ailes.
Related or parent pages :
Architectural Studies (co-signatory)
Pro Bono Missions