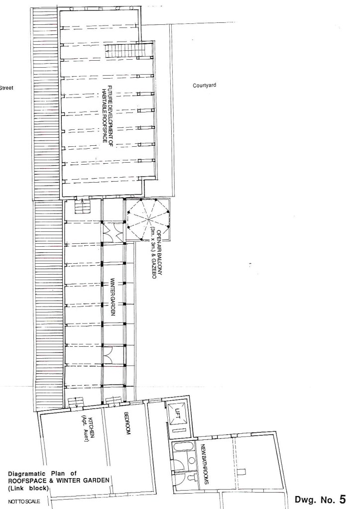
This exploratory study was for the gynaecologist sister of a German friend, who wished to set up her practice in the wing (right), wanted to link it with family quarters (above the pharmacy, far left, whose owner possessed the entire property) providing further living space and a Winter Garden, while also hoping to resolve an issue of ground-floor accessibility for her expectant clientèle.

The cross-ties (trussing) of potentially exploitable roof space being too low to permit circulation, the proposal was to replace these by a tension-plate in cross-ply which would also carry the valley gutter of the Winter Garden’s glazed roof.
The adjunct of a trussed external volume (taking a cue from the volumetric composition of the Rathaus across the square) would afford a suspended open-air terrace, allow climbing plants to invest the structure, and provide the enclosure for an access elevator platform at ground-floor level.

This study was one of the earliest I undertook on becoming independent practitioner, in the wake of a few international competition schemes. Architect colleagues have since appreciated the sketches, drawings and ideas expressed, but the doctor clients who had solicited me were dumbstruck, I never heard from them again.

Cover of A4 presentation (above) and earlier sketches (below)

Related or parent pages :
Architectural Studies (signatory)
Interventions By Date (reverse chronology)
Take Your Pick (thematic groupings)

