
Dès que j’ai perçu le pasteur haïtien, James VIXAMAR, s’adresser à la congrégation baptiste du Point du Jour à Boulogne-Billancourt, j’ai été ému. Homme courageux, il cherchaient en Hexagone des financements pour un centre paroissial à Haut-Limbé, au Cap-Haïtien, dans son pays natal.

Il brandissait une liste des matériaux requis et une estimation des coûts, mais aucune image du projet qu’il voulait réaliser, hormis ce croquis, qui me charme encore.

Son idée-programme, que l’église ne soit pas uniquement un lieu de culte dominical, mais aussi un dispensaire de vivres et de suivi médical, résonnait avec la motivation qui m’avait conduit en MBA peu auparavant. J’avais depuis créé une association 1901 pour encadrer mes activités bénévoles (de conception et de maîtrise d’oeuvre, entre autres) en faveur des moins fortunés. Tenter de l’ aider, par une esquisse architecturale qui pourrait être quantifiée avec réalisme, me paraissait donc normal.

En octobre 1994, pour amorcer le dialogue, j’ai jeté quelques lignes sur papier, pour voir si on se comprenait, question pas évidente ni pour lui ni pour moi. J’ ai précisé que ce n’ était pas une solution étudiée, mais une image d’ après indications de ce que l’ on pouvait soupçonner comme démarche leur convenant. Voici sa réponse.


Ces remarques m’ont permis de mieux imaginer le type de structure envisagée. Aussitôt je lui ai adressé un deuxième croquis pour deux volumes simples, un corps de bâtiments annexes, formant cour avec une grande salle polivalente, ouverte sur les côtés.

Voici l’ accueil réservé à mon croquis du 14 novembre 1995.

Quelques jours plus tard j’ espérais pouvoir clarifier les points d’ interrogation avec un jeux de plans, façades et coupes, en date du 22 novembre 1995. La couverture j’ imaginais en tôle métallique galvanisé, matériau typiquement disponible. A part que, gamin, j’ai toujours aimé la tôle ondulée, telle qu’employée et peinte sur des corps de ferme en Ecosse, l’ exemple d’ Aldo ROSSI m’ avait persuadé que c’est aussi une couverture de choix, pour des architectures que l’on voudrait simples et dignes.


A vrai dire James en était horrifié, et j’ ai fini par comprendre pourquoi : la volumétrie, les pignons aveugles et les matériaux ‘pauvres’ pouvaient rappeler la construction dont l’assemblée disposait déjà ! Comme si par télépathie j’avais transcrit en dessin une réalité jamais vécue par moi-même (voir photo infra), mais qui leur était familière.


Je retiens néanmoins que cette esquisse possédait un vrai potentiel, de réaliser un belle oeuvre avec peu de moyens, si l’ on avait été en position d’ en maîtriser la mise en oeuvre. Mais tel n’ avait jamais été mon propos, ni dans mes moyens. Mon assureur RC professionnel m’ a d’ ailleurs infirmé de pouvoir me couvrir pour un chantier en Haïti. Il fallait donc trouver une autre manière d’ arriver au but.

De son côté James VIXAMAR a communiqué d’autres éléments afin de m’ aider dans ma réflexion, dont un grand panneau de feuilles scotchées les unes aux autres ou il avait tenté d’ esquisser un volume ressemblant à une église de missionnaires, avec clocher, parquets intérieurs et baie d’entrée cintrée. Ainsi que cette ‘carte du pays’ tout aussi charmante.

Le document notarié de cession contre numéraire en date du 11 janvier 1995 m’ a suggéré que j’ avais affaire avec sieur Djimps VIXAMAR, celui même qui avait acheté le terrain pour construire le C.E.D.H.A.L.

Djimps a fini par me communiquer une photo de la construction dont sa communauté disposait déjà.

Là j’ai compris que mon réalisme de concepteur faisant feu de tout bois desservait son rêve à lui, celui que son enthousiasme débordante avait envie de réaliser. J’ ai saisi que c’ était plutôt une architecture de facture coloniale qu’il désirait émuler.
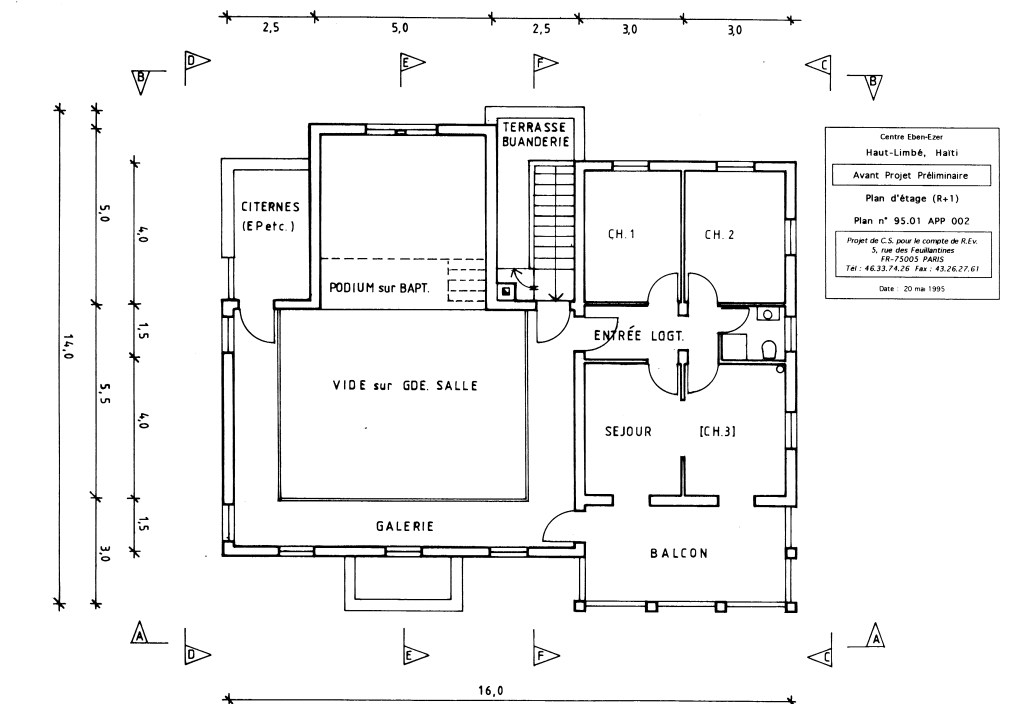
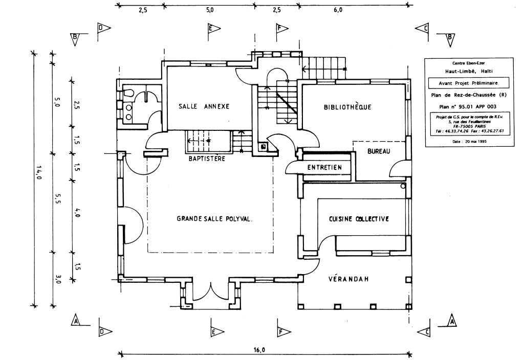
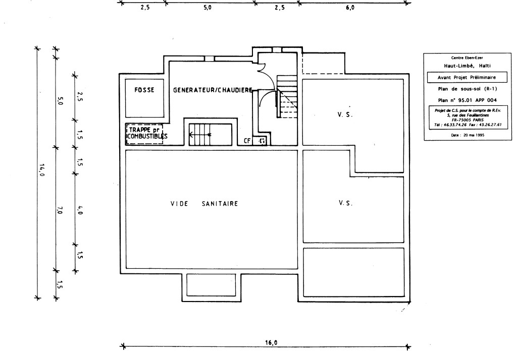
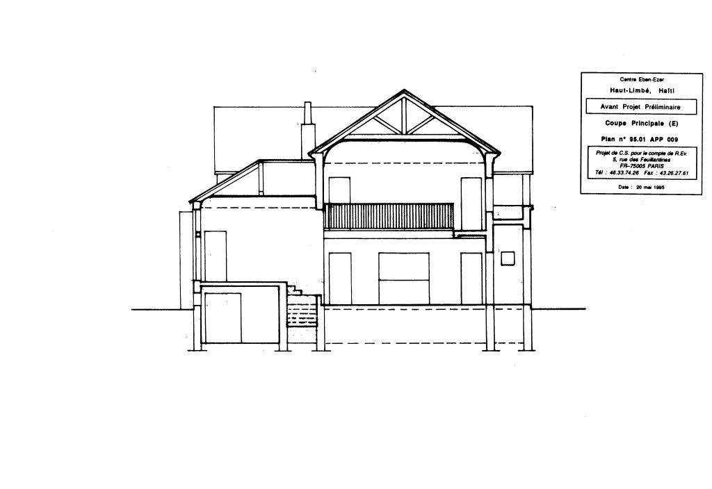
D’où le parti de cette esquisse datée du 22 mai 1995. (J’avais quelque modèle spatial en tête (surtout pour la coupe) qui relèvent de ma propre culture architecturale. Que ce soit le Raumplan de Loos, ou la chapelle Kilmichael of Inverlussa, dont j’avais mesuré le bâti et dressé un dessin de relevé.)
Ravi, le pasteur VIXAMARS s’empressa de publier le projet (promettant des prestations de ma part bien au-delà de ce à quoi je m’étais engagé) comme en témoigne le flyer circulaire infra.

Sur un autre, que j’ai perdu, ou détruit, on a même prétendu que j’ allais m’ occuper de la construction d’ un hôpital. J’ ai protesté à James qu’ il ne fallait pas faire croire que je m’ étais engagé à de telles ambitions. D’ autant plus qu’ entretemps je m’ étais installé avec mon épouse à Nice et nous avions nos propres ambitions familiales !



Pour satisfaire la demande de locaux supplémentaires, j’ ai réalisé un ou deux collages des façades principale et arrière, en rendant la composition symétrique. (Même logique que pour le projet de maison à Port-au-Prince, en 1989.)


Quant au plan de distribution, j’ allais demander à Jonathan BARNABY, stagiaire que notre association R.Ev. avait engagé à Paris, d’en étudier les implications en plan. Manifestement, je commençais à décrocher.


“Le petit geste” : on m’ avait relancé par voie téléphonique, en me suppliant d’ accompagner James VIXAMAR dans sa terre natale. On était disposé à payer mon billet pour ce faire. Mais je voulais, enfin, fonder une famille.

James VIXAMAR (06 65 09 45 90) serait aujourd’hui le président de l’ association Créer l’ occasion, vivre autrement toujours basé à Meudon et toujours engagé en faveur de son pays natal.
Related pages / pages apparentées / pagine apparentate :
Pro bono
OPUS INCERTUM : Take Your Pick / Faites Votre Choix / Scegliete Voi










