Eben-Ezer, Haut-Limbé

Design studies at the request of / études à la demande de / studi svolto a favore di :

Djimps VIXAMAR

1st proposal / 1ère proposition / prima proposta (14.11.1994)

ENG : Given that I would have no controlling opportunity to inspect building work, the adoption of an aggregative scheme of symmetrical elements struck me as the best way to proceed conceptually. Little matter if the size and proportion of openings bear little resemblance to those drawn, from the moment that the notion of approximative symmetry inform the general ordering of the whole.

FR : Etant donné que je n’aurais aucune opportunité de contrôle sur la mise en oeuvre, l’adoption d’un schéma agrégatif d’éléments symétriques me paraissait la ligne conceptuelle à suivre. Peu importe si la taille et la proportion des baies résulteraient peu conformes au dessin, du moment que la notion de symétrie approximative informait l’ordonnancement de l’ensemble.

IT : Dato che non avrei alcuna opportunità di controllare la messa in opera, l’ adozione di uno schema aggregativo di elementi simmetrici mi sembrava la linea concettuale da seguire. Poco importa si la dimensione e la proporzione delle aperture risultino poco conformi al disegno, dal momento che la nozione ie symmetria apprsimativea informasse l’ andamento dell’ insieme.

Development sketch / croquis conceptuel / schizzo concettuale

With water-cum-bell tower / avec clocher-château d’eau / con campanile-torre d’ acqua

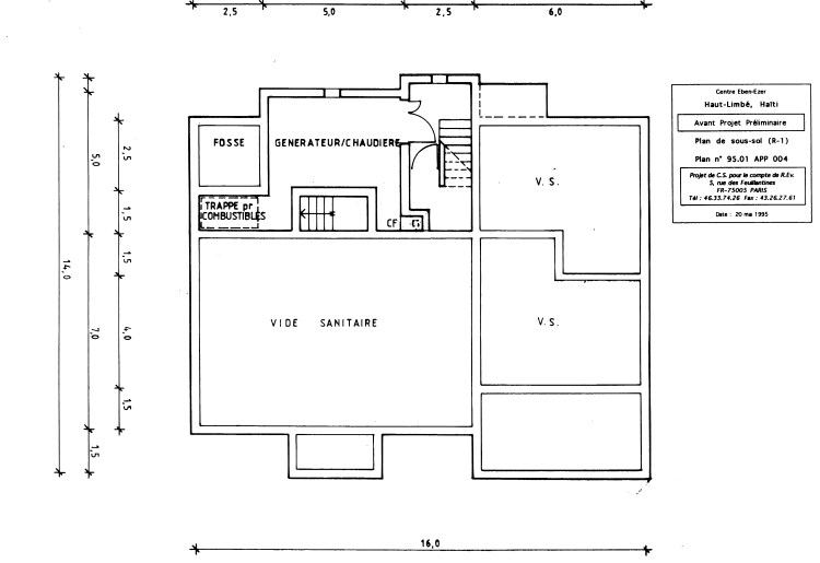
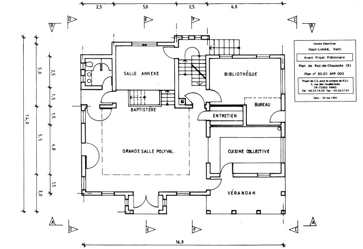
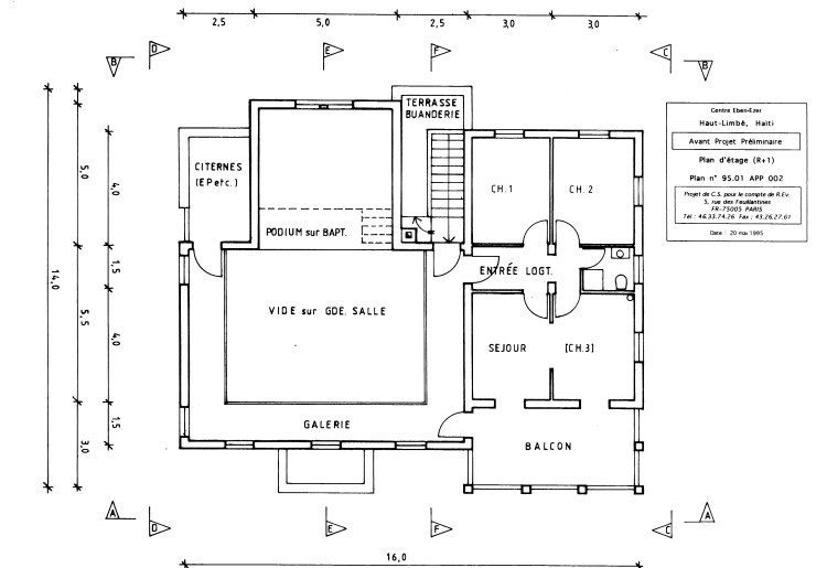
2nd proposal submitted / 2ème proposition remise / seconda proposta consegnata (22.05.1995)

3rd option / 3e hypothèse / 3a possibilità

Following request for further room / suite demande pour plus de pièces habitables / in seguito alla richiesta per altri spazi abitativi

Related pages / pages apparentées / pagine apparentate :

Pro Bono Missions

Architecture & planning / Architecture et urbanisme / Architettura e urbanistica

Interventions By Date (reverse chronology)

OPUS INCERTUM : Take Your Pick / Faites Votre Choix / Scegliete Voi

OPUS INCERTUM homepage