Interior project for Tommy ROBERTS (aka Mr. Freedom of Carnaby St. in the 1960’s) which involved a lot of work : drawings, specification, schedule of works and the ordering of given items (I still have copies of these on Practical Styling notepaper). Although I never set foot in his place a second time, identifying the nitty gritty and describing them succinctly with precision was to come in handy a year or two later, when I would take on my first major chantier, in a foreign land.

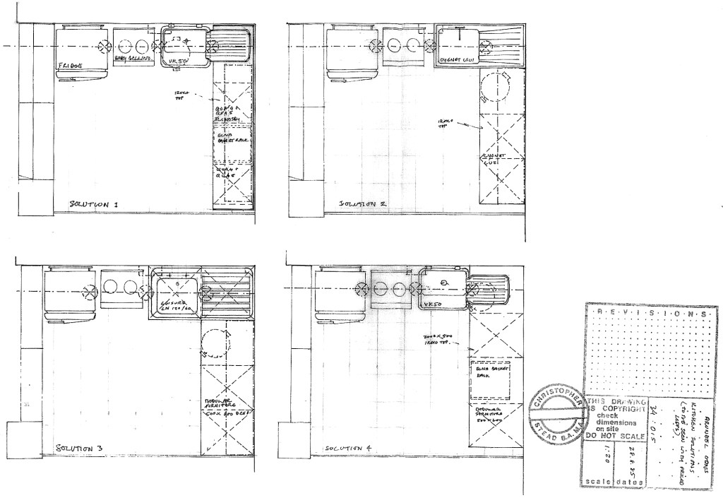
Tommy — who never settled my invoice, claiming to be short, but would hang out with punk stars** at nearby 192, a chic wine bar by architect Tchaïk CHASSAY — was in the habit of inventing ambiances. The scheme juxtaposes some existing white goods (his treasured Baby Belling, a black fridge with a pink interior whose casing he had choicely re-enamelled) with a parapet of pre-cast balustrading, a suite of armour, the Picasso Sofa he was marketing through PS, some wall-hung items and a number of other extant fittings, uplighter etc. A Practical Styling showcase of sorts.


Before arriving at a final solution, several alternative layouts had been envisaged.

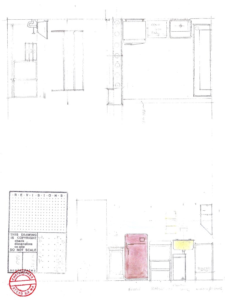
Preceded of course by exploratory sketches…


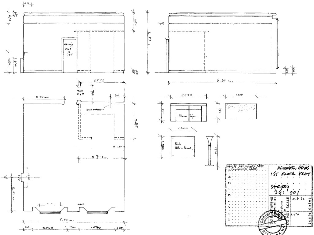
… and a survey of extant premises and furnishings to be redeployed.
** one of them approached our table and began to chat with the guy Tommy had introduced me to. Not wishing to be rude, I held out my hand in greeting. The look of horror was noticeable. I don’t know who you are, I said, but my name is Christopher. Thereupon he shook it. Once he had departed, my interlocutor apologized on his behalf : he’s the drummer of The Clash, and a little paranoid.
Related pages / pages apparentées / pagine apparentate :
OPUS INCERTUM : Take Your Pick / Faites Votre Choix / Scegliete Voi
