Il piano di marmo portoghese rosa aurora, alle dimensioni imperiali, era stato da me selezionato a Londra nel 1982 da una lastra che faceva almeno 4 yards di lunghezza. Epoca ormai rivoluta quando si poteva ancora trovare tali stabilimenti artigianali in città. Rimpiazzava il piano rozzo di un tavolo ligneo tradizionale che avevo dipinto con una lacca metallica effetto martellato blu per carrozzerie, di marchio HAMMERITE. Era l’epoca Practical Styling. Poi si è spaccato in un momento critico, e l’ ho fatto riparare a Parigi da un marmista funebre che lavorava con grande precisione. L’ ha rinforzato incollandoci una vela di fibre di vetro.
Pressapoco attorno al 1987 ho progettato un telaio per rimpiazzare il tavolo ligneo provvisorio che lo sosteneva. Mi sono ispirato di un modello di Josef HOFFMAN par la cantina degli operai di una fabbrica di progetto suo in Czechia. Il bello è che ci avrà consacrato pochissimi minuti, e così risulta poco prezioso, ben diverso dalla maggior parte dei suoi mobili. Sul momento un falegname locale non lo voleva realizzare il mio disegno, criticandone la costruzione. Ma è proprio quest’ aspetto costruttivo che mi interessava nel modello.
Ho archiviato il disegno promettendoci di utilizzarlo prima o poi.
Nel 2016 ho cominciato a fare appello a un falegname parigino, per i mobili fissi di arredo specifico sui miei cantieri. Sarebbe l’ uomo a realizzare la cosa, dicembre 2017, che ho tinteggiata in nero esattamene come il buffet del 1995. Venti due e venti cinque anni dopo la stessa pittura TOLLENS era ancora buona da diluire, con trementina, per tingere in nero trasparente sia il tavolo che le sedie DAUPHIN che ci si infilano sotto.
Istallazione del tavolo, 2017
Se la sedia VITRA di Ron ARAD necessita un cuscino, è che non è abbastanza comoda per le femmine. Poi si impone per sedersi a parecchi in uno spazio ristretto. Ci voleva la sedia idonea, che risparmia volume.

Istallazione delle sedie, 2020
- Foto dell’ istallazione, ottobre 2020
- Foto dell’ istallazione, luglio 2020

Sedie DAUPHIN, 2018-2020
- Foto di KIM Jung Yeon, 2021
- Foto in corso di assemblaggio, 2020
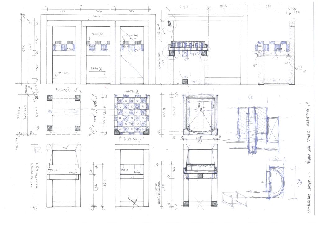
- Foto dello sviluppo delle sedie, 2019
- Disegno finale delle sedie, 2019
- Studio variante seduta in lamiera, 2018
- Disegni DLO della sedia, 2018
- Studi iniziali, 2018
- Unico esemplare in frassino naturale

Tavolo alla HOFFMANN, 1987-2017
- Preventivo e disegno DLO, 2017
- Disegno CMAS, 1987

Pagine apparentate :