Questo mobile rimpiazza un modello club classico degli anni venti, a 2 piazze, che il sardo FRAU aveva poi fatto ‘suo’ di rinomato. La sua pelle rossa HERMES, andava in qualche modo ricordato. Esaurito nel frattempo, aveva concluso il suo acquisto 30 anni fa e aveva determinato la scelta dei colori nell’ ambiente, persino dei mosaici (1987).
Visto che ci passiamo un tempo importante, a leggere e a lavorare, una poltrona si deve di essere comoda, fatto rarissimo nella produzione design industriale contemporanea. Uno schienale alto ci contribuisce sostanzialmente, dal momento che mantiene la propria forma.
Per potere ospitare all’ improvvisa, ci voleva una nuova seduta comoda che diventasse letto rapidamente, e che contenga già tutta la biancheria sotto mano. Poi, per leggere in buone condizioni, conveniva integrarci delle lampade orientabili (QUILL, 2019).
La scelta del ciliegio americano rimonta a una promessa che mi sono fatto a New York, ammirando il tavolo in casa dell’ architetto BAUSMAN, anziché altri mobili della stessa essenza esposti al Metropolitan.
Foto CMAS da POZZI&VERGA, 2018
Scatti presi in occasione della presentazione di controllo ultimo (prima della consegna) da POZZI & VERGA, Mariano Comense, giugno 2018.
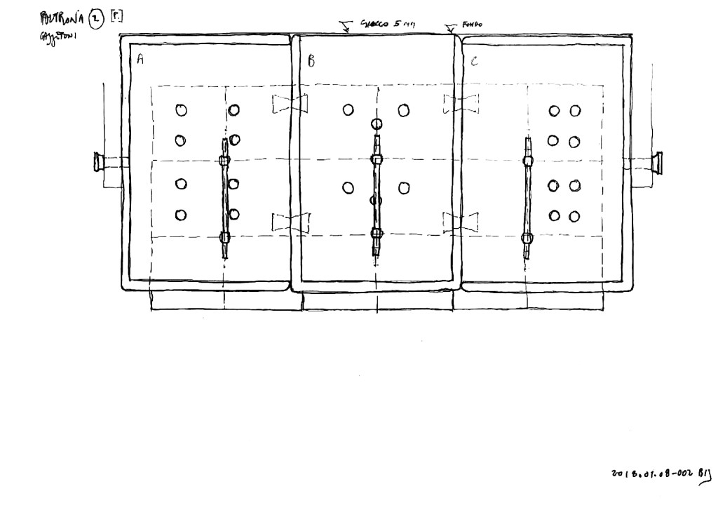
Appunti e costruzione, 2018
Verifica grafica dell’ aspetto, 2018

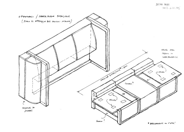
Comporre con i moduli del divano
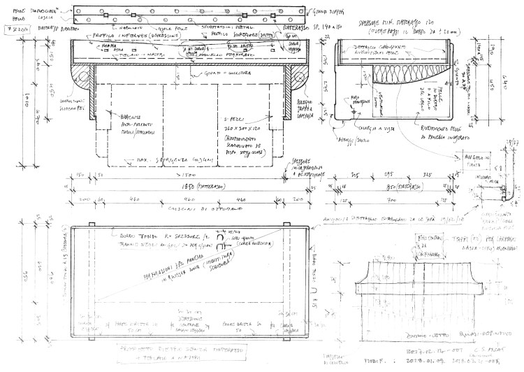
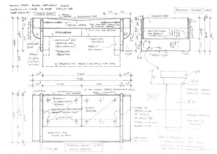
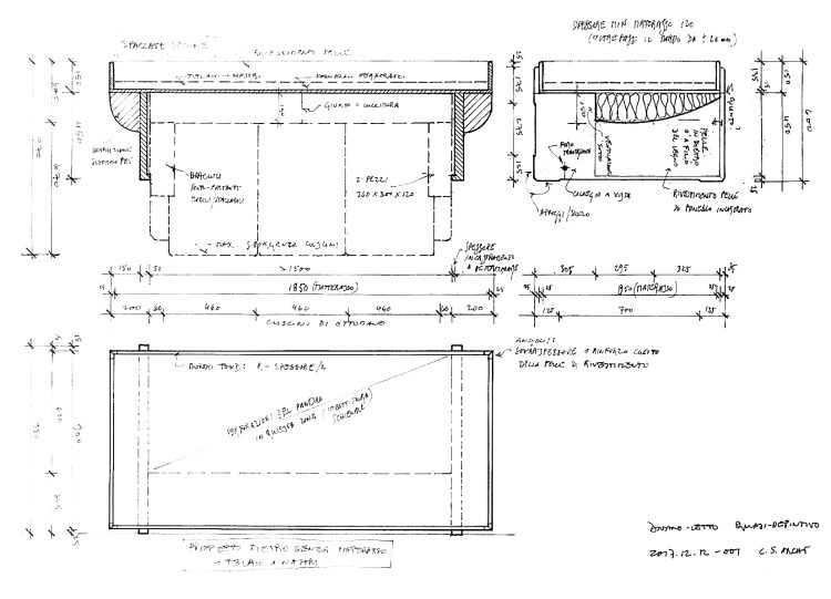
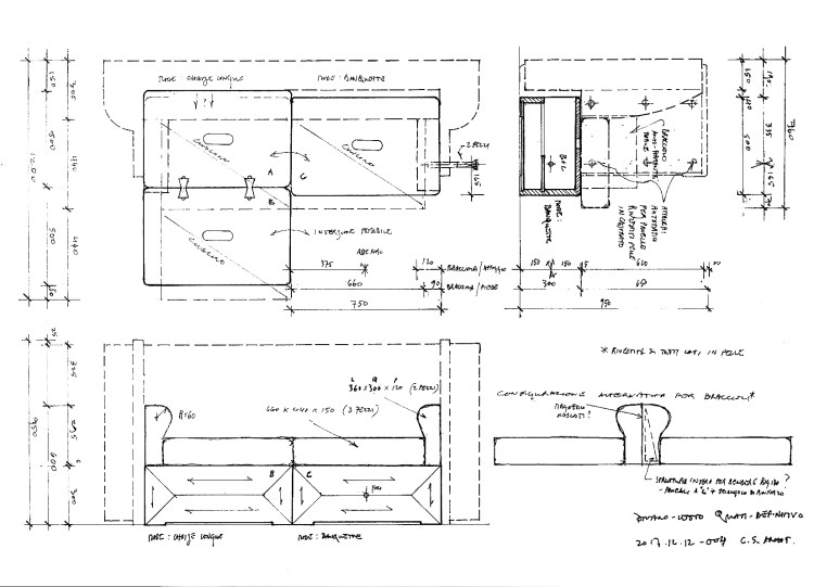
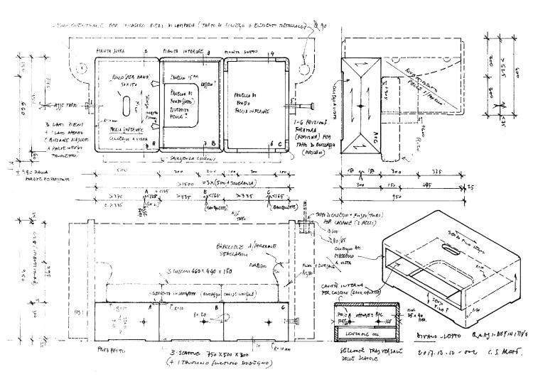
Disegni esecutivi, 2017
Disegni di sviluppo, 2017
Studi intermedi, 2017
Schizzi iniziali, 2017
Prima idea di progetto, 1988
Spesso si incontrano dei lits à bateau nei saloni francesi, per la siesta o dove può dormire un’ ospite. Soluzione scartata per la problematica dello schienale che si voleva alta e di appoggio comodo, rimane il fatto che lo schizzo iniziale mette in moto la riflessione. Trovo che che finalmente ce n’è un ricordo sublimato nella realizzazione, forse evidenziata dai bracciali tondi e l’ espanso ampio di doghe di legno a vista che già contavo contrapporre con le parti morbide rivestite.

Divano PARIGI in modo letto con lampade

Pagine apparentate :

































































