Tematiche per tipo di intervento sulle quali sono stato chiamato a intervenire, per conto di clienti miei o di altri architetti.
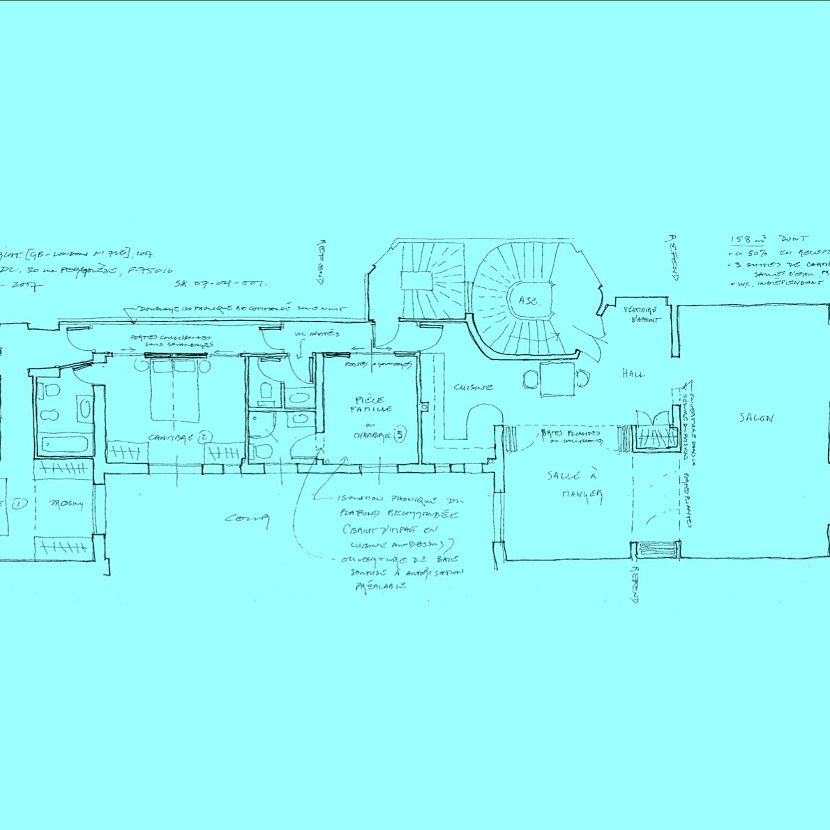
- Alloggi : ridividere la superficie data per prevalersi di spazi in più (posti letti, cucina, servizi…)
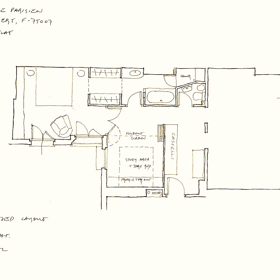
- Alloggi : soluzioni di flessibilità e di sfruttamento massimo dello spazio
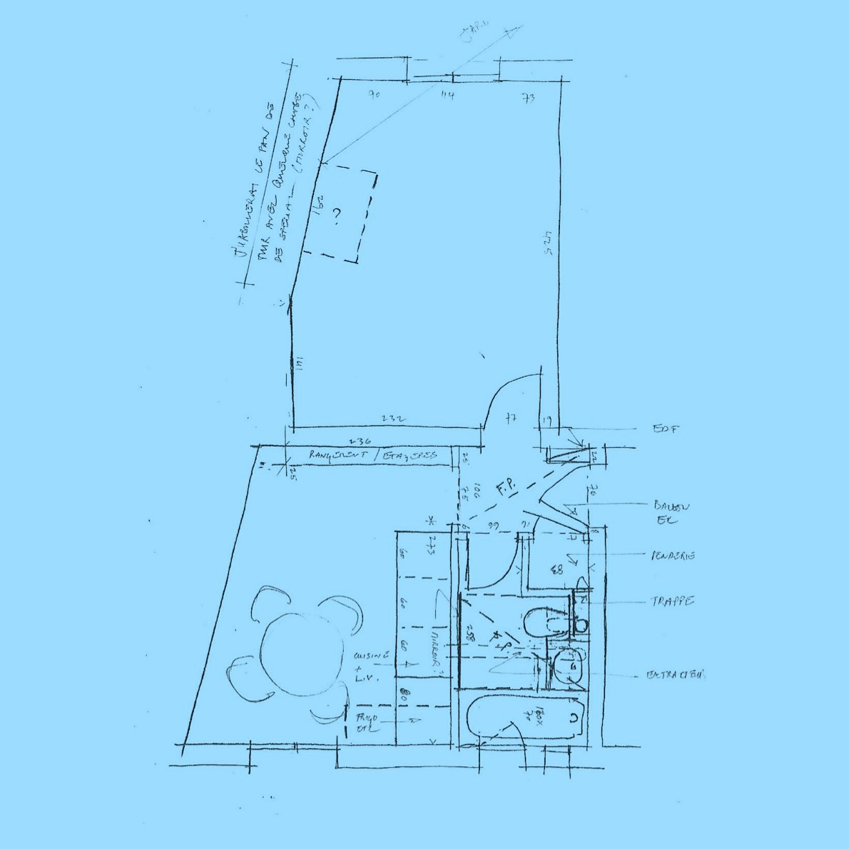
- Alloggi : risanamento e rinnovo generali
- Botteghe e vetrine : ristrutturazione di facciate
- Case nuove
- Centri urbani e peri-urbani
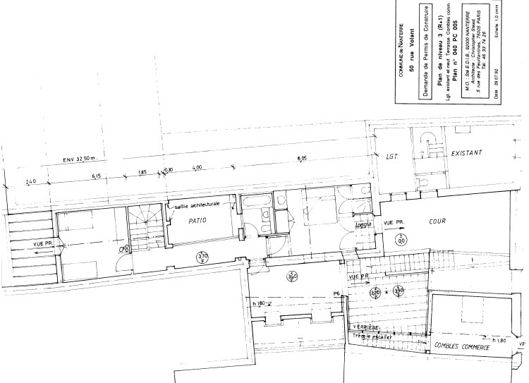
- Edifici esistenti : estensioni residenziali (Tourettes sur Loup, EEB Nice, Mareil, Owendo, Châtillon, Opio)
- Luoghi di culto : sicurezza in caso d’incendio (Le Reveil, EEB Parigi)
- Progetti altrui su pianta : revisione critica delle proposte (Valbonne, Nicloux Montmorency)
- Terreni vergini : fattibilità urbanistica (Bar sur Loup, Nicloux Var, Le Rouret)
Alloggi : ridividere la superficie data per prevalersi di spazi in più (posti letti, cucina, servizi…)
Principio : la percezione cellulare dello spazio fa sì che dividendolo l’ utilità di esso si aumenta.
























Alloggi : soluzioni di flessibilità e di sfruttamento massimo dello spazio
Dallo svincolamento delle funzionalità convenzionali alla concezione di attrezzi appositi.












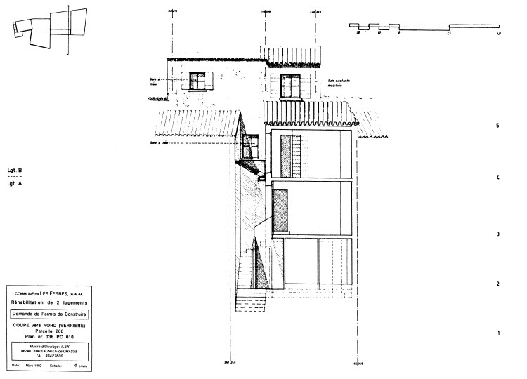
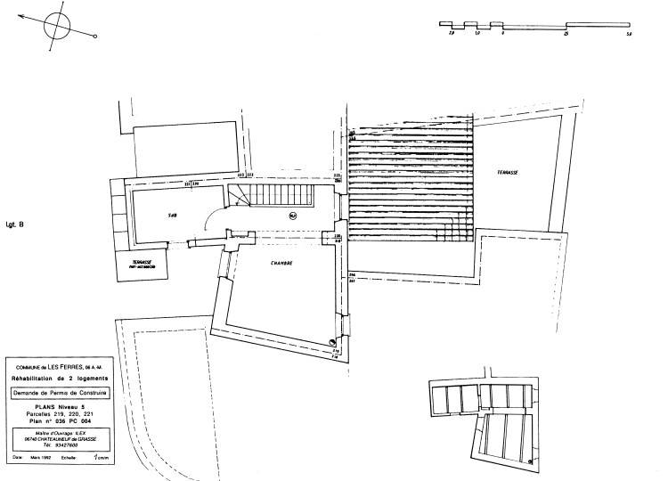
Alloggi : risanamento e rinnovo generali
Dalle infrastrutture e demolizioni parziali alla sistemazione in dettaglio dei nuovi spazi.
Botteghe e vetrine : ristrutturazione di facciate
Secondo i bisogni del momento : accessibilità, larghezza di uscite, ventilazione, tradizione, visibilità.








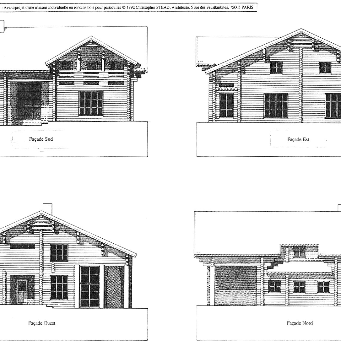
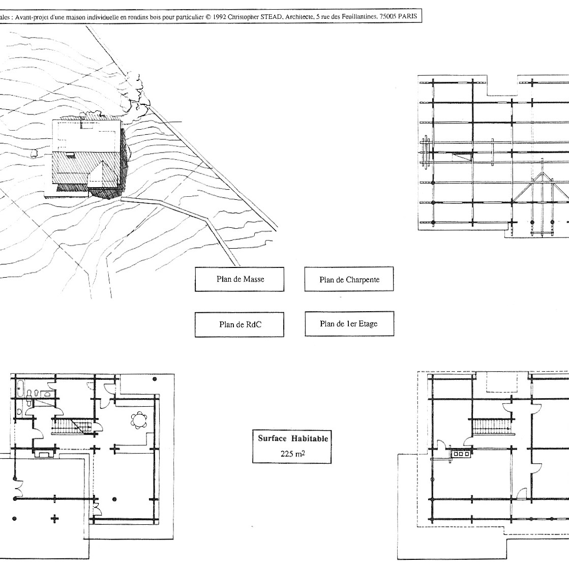
Case nuove
Dalla condominio alla villa e all’ unità ripetitiva a schiera.




























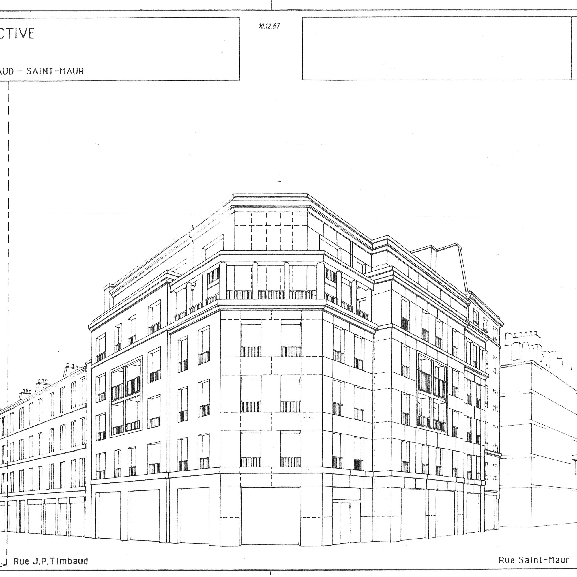
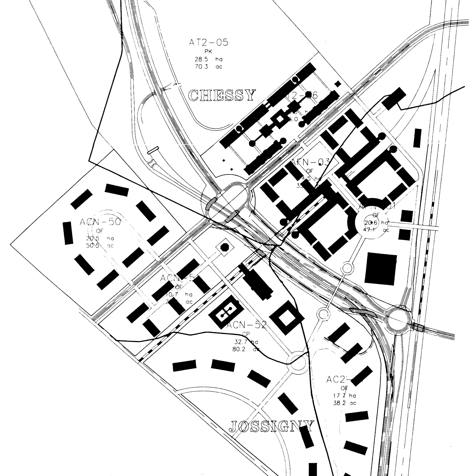
Centri urbani e peri-urbani
Ricucitura urbana e punti di riferimento.
























Conversioni e cambiamenti di destinazione
Attici, torre e proprietà di origine agricola in locali abitabili.
Duplex : nuove scale



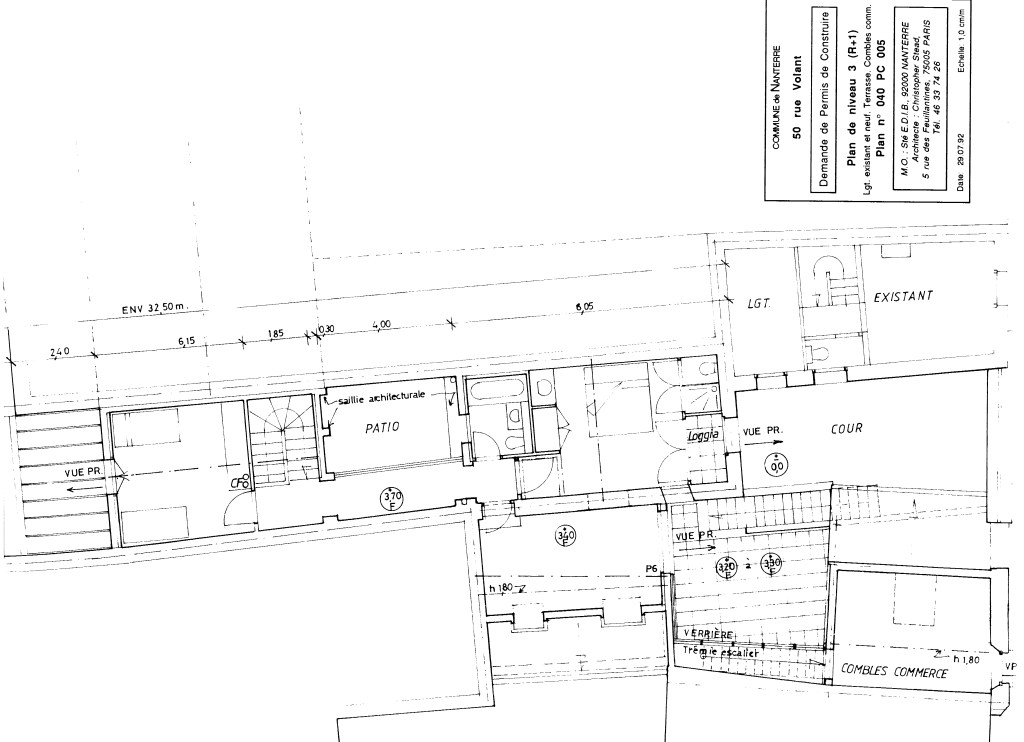
Edifici esistenti : estensioni residenziali
f
Edifici esistenti : ristrutturazioni
f
Frammenti edilizi da realizzare
f
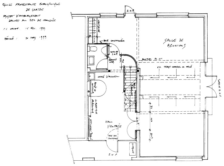
Luoghi di culto
Progetti altrui sottomessi a proposte di revisione
Ricostruzione dopo incendio






























































