Sviluppati ben oltre lo schizzo, questi progetti sono rimasti senza implementazione ulteriore né domanda di autorizzazione da parte dei committenti.
Estensione di una villa, Tourettes-sur-Loup, 2019
Una giovane coppia, progettandosi una grande famiglia mi ha chiesto consigli e un progetto per l’ estensione della casa esistente, anni settanta, poco termo-isolante in contro basso della strada. Ho suggerito di alzarla di un piano, con ossatura lignea leggera altamente coibentata.
Significa fare dei lavori veloci e contrattare un prestito. Volevano invece, con i muratori di famiglia, far investimento della propria mano d’opera.
Studiata in diverse varianti la mia proposta finale — accettabile anche all’ Architecte des Bâtiments de France, che sarebbe sollecitato per un’ avviso — prevede un piano inferiore con copertura terrazzata ai livelli del giardino. Un volume superiore contiene il salone aperto sui 3 lati, importante a valle per godere la luce naturale.


Ricovero per biciclette, Parigi, 2008-2018
Sollecitato nel 2008, ho fornito uno schizzo che sul momento non ha dato niente. Un decina d’anni dopo, mese per mese, l’idea è stata rilanciata, con richiesta di uno studio completo (offerta d’impresa inclusa) per la realizzazione.
Già trovare un’ impresa nei dintorni di Parigi che accettasse di lavorare l’ acciaio inossidabile è stata un’ esperienza imbarazzante. Aspettandosi a una risposta artigianale per la lavorazione del metallo, sembra invece che se non si sa più come fare.


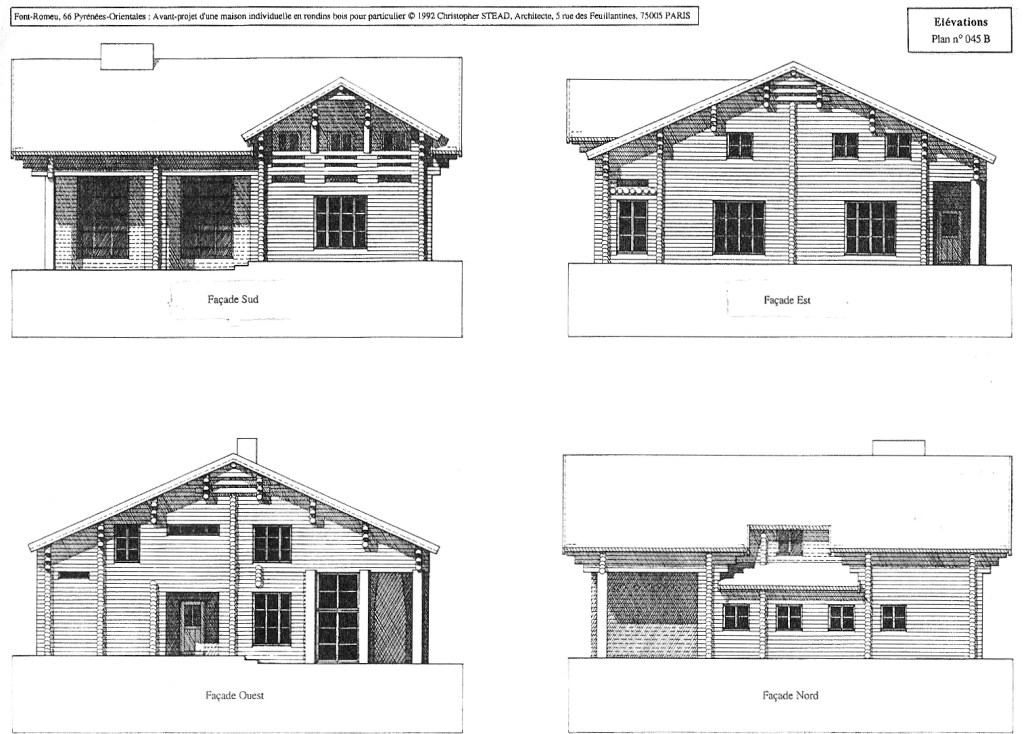
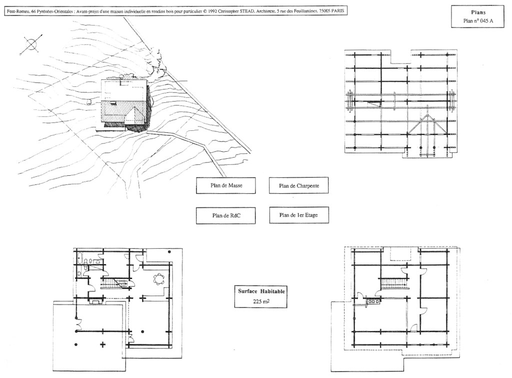
Casa in tronchi di legno, Font Romeu, 1992
Se nel commercio si dice il cliente ha sempre ragione, è che non si tratta di progettazione ma di merce tipicamente già confezionata (già più facile da rimpiazzare che l’ acquirente). Invece nell’ architettura si tratta di un’ ipotesi che viene testata tramite la progettazione stessa. In tutta logica il cliente non può pretendere di imporsi, in anticipo, su una cosa che non ammaestra se stesso. Ogni progetto obbedisce all logica del progetto stesso, che è ancora più prevalente nel caso di costruzioni a tronchi d’albero. Per ottenere una distribuzione chiara, in base a una ripartizione strutturale coerente (specie sul un terreno in pendenza) il progetto si deve di obbedire piuttosto alla geometria. Se infine il cliente non era contento del risultato è anche perché non aveva accettato di pagare il prezzo da me annunciato all’ inizio. Per lo sconto che mi ha imposto, mi sono fatto il piacere di trovare la soluzione che darebbe alla lunga soddisfazione a me, il progettista.


Casa da costruire a tappe, Port au Prince, 1989
Nei primi sette anni di vita parigina, frequentavo un’ assemblea battista maggiormente di immigranti (come me stesso) tipicamente africani o originari delle isole dei caraibi. Lavoravo ancora da BELLET, ma volevo mettermi al mio conto. L’ amico, che tornava al paese ogni due anni per due mesi, mi ha chiesto un progetto da costruire su un suo terreno a Port-au-Prince già da quell’ estate. Ci aggiungerebbe delle stanze a misura dei suoi mezzi. L’ idea di LOOS per il suo progetto al Lido di Venezia mi ispirava. Ho intrapreso di rendere un progetto che anche incompiuto (il senso dei diagrammi in alto) non sarebbe brutto.

Piscina coperta, Donnington Holt, Regno Unito, 1985
In seguito ad una mia esposizione di disegni di architettura a Charterhouse Studio, il committente, amico e già direttore finanziaria dell’ azienda di famiglia, mi ha chiesto un’ avviso sull’ opportunità di costruire una piscina, coperta da vetrate, sul prato davanti alla casa. Gli ho reso visita con David NARESSENS che aveva espresso il desiderio di collaborare insieme. Abbiamo proposto di sfruttare piuttosto un pezzo di terreno abbandonato, dietro la casa. Ci ha valuto il premio 1967 dell’ Associazione degli Architetti d’ Irlanda (AAI).

Pagine apparentate :
Pagine in inglese : OPUS INCERTUM : Take Your Pick
Pagine in francese : OPUS INCERTUM : Faites Votre Choix
Pagine in italiano : OPUS INCERTUM : Scegliete Voi