This page groups both built and unbuilt residential or domestic extension projects.
Some projects have their own page, but here is given an overview of the approaches adopted, which correspond to two distinct types : surélévation (vertical extension) or agrandissement d’emprise (horizontal extension).
Projets en surélévation / vertical extensions
Case study, sous forme de maquette visant l’élaboration systématique d’un prototype applicable à des cas de figure précis, même en présence de bâtiments existants. Il est d’autant plus important de construire en hauteur en pareilles localités, pour éviter la minéralisation des sols, qui provoque des inondations meutrières.

13 r. Vernier, Nice, France, 2012
L’église évangélique baptiste de Nice possède un immeuble d’angle de 1910, qui ne fut jamais complété. Des appentis de pauvre facture investissent la cour. Divers pasteurs ont songé exploiter le potentiel. Mon étude, en croquis et maquette, montre comment on pourrait construire quelque logement (presbytère etc.) en surélévation ponctuelle des locaux de l’église, bonifiés, agrandis et mis en conformité avec la réglementation d’accès, que la démolition de ces appentis permettrait. Conclusion immédiate : il faudrait en faire davantage. Entrave majeure : le stationnement.

Maison à Bobigny, France, 2012
Projet de surélévation comprenant renforcement préalable de la structure (poteaux et longrines en cave), amélioration de l’isolation thermique, dans le strict respect des consignes d’urbanisme. Puisqu’il n’y que l’enduit de finition qui définir l’architecture d’un ouvrage à ITE, opportunité d’explorer ce qu’on peut faire avec un jeu de textures.

Townhouse, Paddington, Australia, 1999
My cousin’s man had a brick corner house in this residential area, and was looking for ideas. From the plans they passed me I devised this model sketch scheme, whose parti was to hollow out an open-air patio within the existing building, for leisure at weekends, parking during the week. Beds below, living above, with open roof terrace.

Projet de surélévation partielle d’une maison existante, dégageant un grand volume sous les nouveaux versants, muni de sa terrasse privée sur jardin précédemment sous couverture tuile romaine. Permis octroyé en temps record, 5 semaines, puisque le dossier en demande était bien préparé et complet.

Doctors’ residence, Germany, 1990
One of my earliest feasibility studies as independent practitioner, for a friend’s sister.
As gynaecologist she desired to set up her own Praxis in the empty wing of the Ratsapotheke building. She wished to link it to the family home, above their landlord’s pharmacy, with a Wintergarten, an outdoor terrace and some device dealing with changes in level.
I had just returned from Milan, working with Aldo ROSSI on our National Museum of Scotland competition submission, and had taken to sketching in thick soft graphite.
Travel expenses and reproductions costs were settled, but those that had asked for the study remained silent. I never learnt what they thought.

Surélévation, Boulogne, 1988
Dans l’emploi de mon confrère François BELLET, j’avais la relative bonne chance de pouvoir étudier la conception & la présentation graphique (dessins) de la plupart des projets qu’on lui demandait. Ici, son client souhaitait profiter d’une autorisation ancienne pour surélever son bien, l’étage supérieur d’un petit immeuble de copropriété. Partisan enthousiaste de l’ossature bois, BELLET y voyant l’opportunité d’une superstructure légère.
A part l’étude de bonnes dispositions planimétriques, ce projet de surélévation permettait de se servir de modules alternés dans l’ordonnancement de la façade porteuse, qui viendrait apporter une certaine rigueur de composition manquant à l’infrastructure bétonnée.

32 r. des Trois Bornes, Paris 1987-9
Engagé fin 1986 par François BELLET, notamment pour développer son projet du SCI des Trois Bornes pour un ‘collecteur 1% patronal’, le préparation & suivi du chantier de réhabilitation m’a occupé une bonne partie de mon temps de travail dans son agence sur plusieurs années. Notamment en raison d’une estimation initiale parfaitement inadéquate d’un métreur-économiste BTP. La surélévation partielle de l’immeuble de rapport s’était imposée comme moyen d’équilibrer le bilan d’opération.
Paradoxalement, si la façade arrière est en pans de bois, dans sa partie courante (R+1 à R+5) la surélévation du dernier étage (R+6) a été réalisée en maçonnerie creuse, pour une question d’économie budgétaire. La ‘fausse’ souche de cheminée est en réalité un local technique de VMC, dont les réseaux ont été conçus par nous les architectes, sans BET conseil externe.

Projets en agrandissement d’emprise / horizontal extensions
La surélévation de la structure existante, datant des années ’70 et mal isolé, en y intégrant un manteau ITI (isolation thermique par l’extérieur) me paraissait la solution évidente. Mais, obligeant le recours à financements & prestations extérieures, ne convenait pas aux Maîtres de l’Ouvrage, dont la parenté comporte des maçons.

Maison dans la Sarthe, France, 2012
Ce projet, dont la maîtrise d’oeuvre a été assurée par les clients eux-mêmes, démontre que le véritable apport de l’architecte, sa valeur même, n’a absolument rien à voir avec des notions quantifiables, tels que le coût des travaux de bâtiment. C’est pourquoi je refuse depuis longtemps d’indexer mes honoraires sur pareilles dépenses.

Indoor pool, Berkshire, UK, 1984
Although strictly speaking separate buildings, they are conceived as an extension to the rambling Georgian mansion, itself extended in Victorian times, so as to reinforce the entrance front and create, beyond, a genuine service yard defined by outhouses and garages.
Our client declined to proceed, preferring to sell to a housing estate developer, but the scheme received the 1987 Award of the Architectural Association of Ireland.

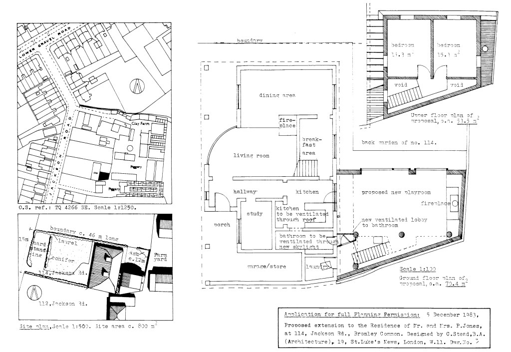
Bungalow in Bromley, UK, 1983
My first ever planning application, for an extension with corrugated iron siding, next to a piggery whose buildings used the same material for roofing. The planning heating being open to the public, I made the trip. Some on the committee roared with laughter when it came to reading out my project description, and so the application was passed.

Related or parent pages / pages apparentées :
Architectural Studies (signatory)
Interventions By Date (reverse chronology)
Take Your Pick (thematic groupings)